© 2026 Regimo Bern

Neu renovierte Gewerbefläche an Toplage in der Berner Marktgasse

Die Marktgasse 31 liegt zentral in der Berner Altstadt und überzeugt durch eine lebendige Umgebung mit zahlreichen Geschäften, Restaurants und Cafés. Dank der hohen Passantenfrequenz sowie der ausgezeichneten Anbindung an den öffentlichen Verkehr bietet dieser Standort ideale Voraussetzungen für eine erfolgreiche Geschäftstätigkeit.

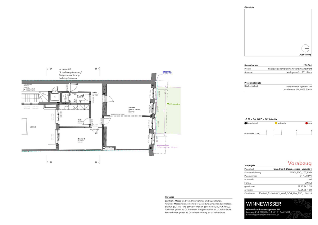
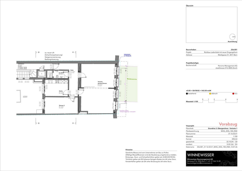
Die helle Gewerbefläche im 3.Obergeschoss überzeugt durch eine funktionale Raumaufteilung und eignet sich hervorragend als Praxis-, Therapie- oder Bürofläche für Dienstleistungsbetriebe. Der Grundausbau ist hochwertig ausgeführt und bietet Ihnen gleichzeitig die Freiheit, die Räume nach Ihren individuellen Bedürfnissen zu gestalten.

Profitieren Sie von den zahlreichen Vorteilen, die Ihnen diese Gewerbefläche bietet:
- Neu renovierte Gewerbefläche an zentralster Altstadtlage
- Drei individuell nutzbare und gestaltbare Räume
- Voll ausgestattet, geschlossene Küche
- Eigene WC-Anlage sowie Dusche

Ihre Vorteile mit Regimo Business:

1. Individuelle Mietpreis- und Vertragsmodelle
2. Beratung und Unterstützung bei der Umbau- und Einrichtungsplanung durch ausgewiesene Spezialisten.
3. Persönliche Betreuung und hohe Flexibilität im Hinblick auf Mieterwünsche während der gesamten Vertragsdauer.

Der Mietzins versteht sich zzgl. CHF 32.50 Nebenkosten/m2/Jahr und MwSt.

Haben wir Ihr Interesse geweckt? Dann zögern Sie nicht und kontaktieren Sie uns, um einen individuellen Besichtigungstermin zu vereinbaren.
20 m
Öffentlicher Verkehr
10 m
Einkaufsmöglichkeit
1.7 km
Schule / Kindergarten
3 km
Stadtzentrum
eckdaten Lift