© 2026 Regimo Bern

MIETEN OHNE KAUTION - Geniessen Sie die Sonnenseite von Nidau

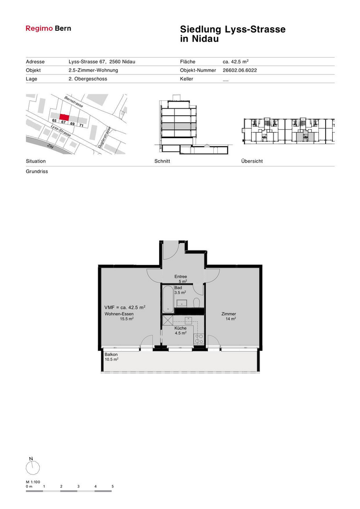
Diese zentral gelegene Wohnsiedlung ist voller Leben. Sie finden hier ein zeitgemäss ausgestattetes, preisgünstiges Zuhause. Anschlüsse an den öffentlichen Verkehr sowie attraktive Einkaufsmöglichkeiten befinden sich in nächster Nähe.

Für Ihre Wohnqualität:
- abgeschlossene Küche mit Induktionskochfeld und Geschirrspüler
- Parkettboden in Wohn- und Schlafzimmer
- Nasszelle mit Bad/WC
- Einbauschränke im Korridor
- Balkon
- Kellerabteil
- Lift


Zusätzlich auf Wunsch: Einstellplatz Tiefgarage, CHF 115.00/Monat

Bei diesem Mietobjekt müssen Sie nicht wie üblich drei Monatsmieten als Kaution auf ein Sperrkonto einzahlen. So bleiben Sie liquid, da nicht eine grössere Geldsumme für die Dauer Ihres Mietverhältnisses blockiert ist. Und das Beste: Das Angebot "Mieten ohne Kaution" ist für Sie gratis. Erfahren Sie mehr auf https://regimo.ch/kaution oder auf dem Flyer in der Fotoserie des Inserates.

Hinweis: Die abgebildeten Fotos stammen von einer typenähnlichen Wohnung und können in Ausstattung und Grundriss leicht variieren. Sie dienen lediglich dazu, die Materialisierung der Wohnungen zu veranschaulichen.

Interessiert? Dann lohnt sich eine Besichtigung.
750 m
Öffentlicher Verkehr
600 m
Einkaufsmöglichkeit
450 m
Schule / Kindergarten
550 m
Stadtzentrum
eckdaten Lift
haustiere Haustiere erlaubt
kinderfreundlich Kinder-freundlich
Garage Garage / Parkplatz

Weitere Objekte von Regimo Bern