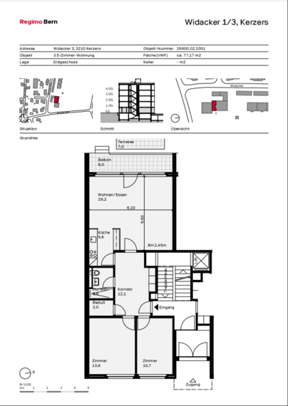
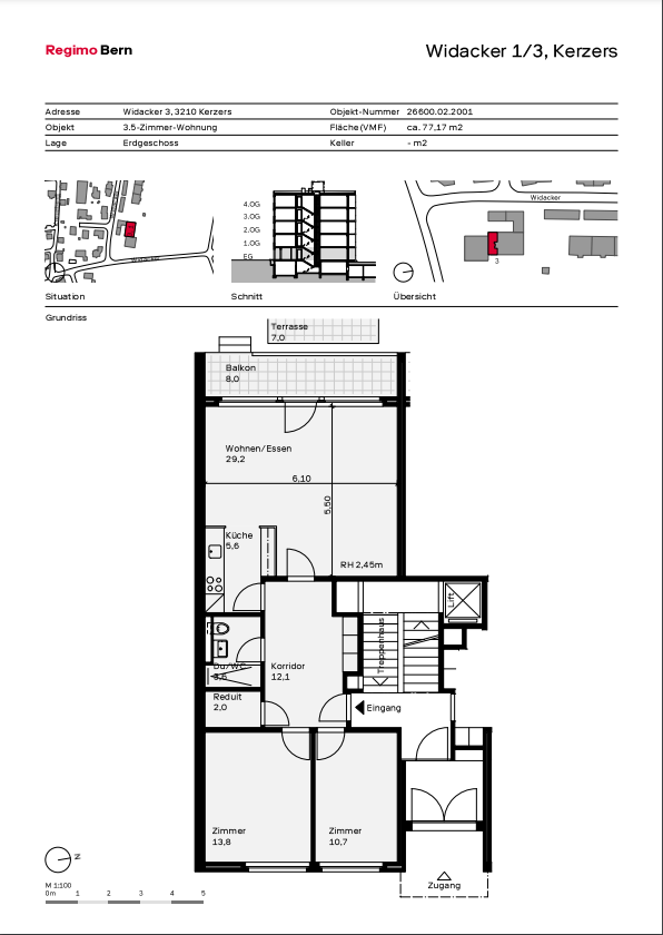
Falls Sie eine Aussicht ins Grüne in gepflegter Umgebung geniessen möchten, ist diese geräumige Wohnung mit neu sanierter Nasszelle genau das Richtige für Sie. Einkaufsmöglichkeiten sind in wenigen Gehminuten erreichbar. Auch der nächste Autobahnanschluss ist in unmittelbarer Nähe.
Für Ihre Wohnqualität: - Küche mit Glaskeramik und Geschirrspüler - Nasszelle Dusche/WC - Laminat-, Lino- und Parkettböden - Einbauschrank im Korridor - Reduit - Balkon mit Zugang zur Terrasse - Lift Bei diesem Mietobjekt müssen Sie nicht wie üblich drei Monatsmieten als Kaution auf ein Sperrkonto einzahlen. So bleiben Sie liquid, da nicht eine grössere Geldsumme für die Dauer Ihres Mietverhältnisses blockiert ist. Und das Beste: Das Angebot "Mieten ohne Kaution" ist für Sie gratis. Erfahren Sie mehr auf https://regimo.ch/kaution oder auf dem Flyer in der Fotoserie des Inserates. Hinweis: Die abgebildeten Fotos stammen von einer typenähnlichen Wohnung und können in Ausstattung und Grundriss leicht variieren. Sie dienen lediglich dazu, die Materialisierung der Wohnungen zu veranschaulichen. Interessiert? Dann lohnt sich eine Besichtigung.