© 2026 Regimo Bern

Komfortabel Wohnen in moderner Überbauung

Geniessen Sie nach einem arbeitsreichen Tag die grosszügigen Dimensionen dieser modernen und lichtdurchfluteten Wohnung mit grossem Balkon. Als urbaner Mensch wissen Sie das Stadtleben zu schätzen, das in der näheren und weiteren Umgebung pulsiert.

Für Ihre Wohnqualität:
- offene Küche mit Geschirrspüler und Glaskeramikherd
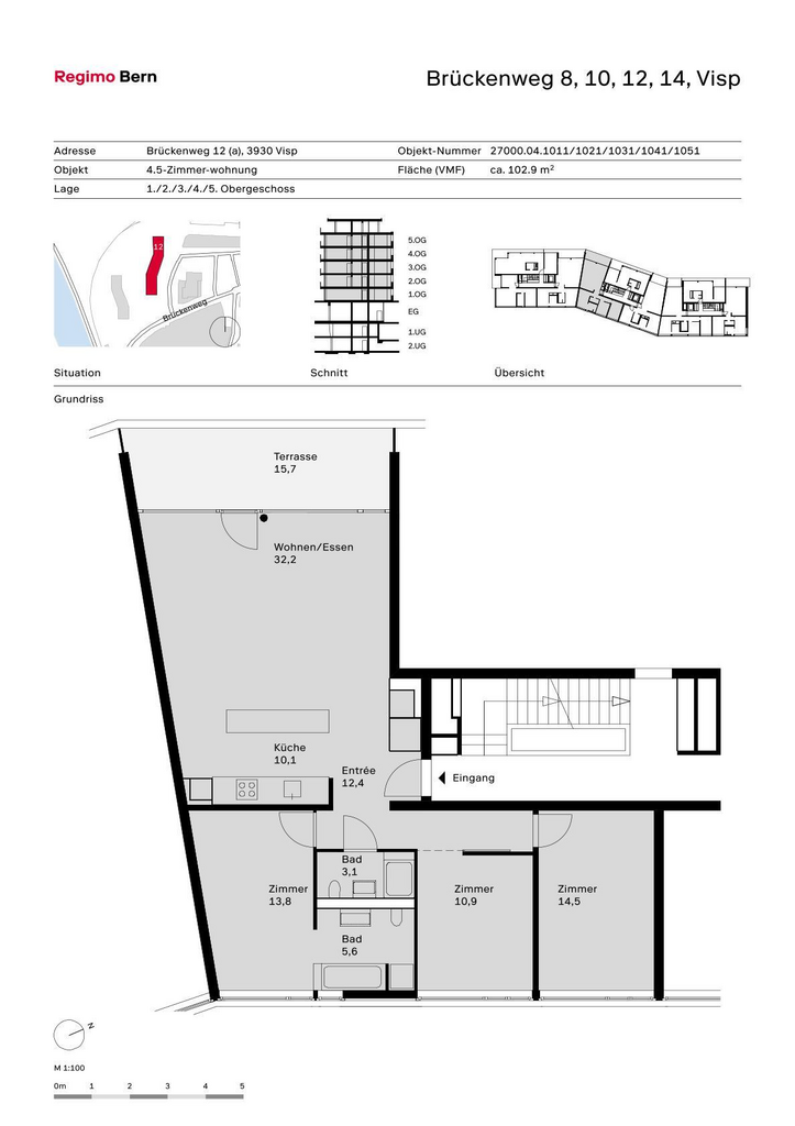
- Parkettboden in Wohn- und Schlafzimmer
- Plattenboden in den Nasszellen
- Nasszelle mit Bad/WC
- Nasszelle mit Dusche/WC
- Wandschrank beim Eingang
- Lift
- Kellerabteil
- Terrasse

Zusätzlich auf Wunsch: Einstellplatz Tiefgarage, ab CHF 120.00/Monat

Hinweis: Die abgebildeten Fotos stammen von einer typenähnlichen Wohnung und können in Ausstattung und Grundriss leicht variieren. Sie dienen lediglich dazu, die Materialisierung der Wohnungen zu veranschaulichen.

Interessiert? Dann lohnt sich eine Besichtigung.
240 m
Öffentlicher Verkehr
91 m
Einkaufsmöglichkeit
650 m
Schule / Kindergarten
eckdaten Lift
haustiere Haustiere erlaubt
Garage Garage / Parkplatz

Weitere Objekte von Regimo Bern