© 2026 Regimo Bern

Wohnkomfort, der kaum Wünsche offen lässt

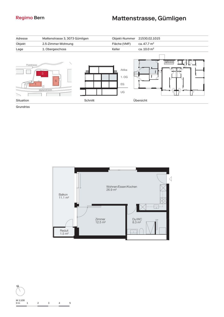
Günstige Verkehrslage, attraktiver Grundriss, moderne Ausstattung, viel Licht und Luft: Diese Vorzüge machen diese Wohnung zu einem besonders begehrten Ort zum Leben und Sein. Ein Paar oder eine Einzelperson mit hohen Ansprüchen an Ausstattung und Komfort wird sich hier vom ersten Tag an wohl- und heimisch fühlen.

Für Ihre Wohnqualität:
- Eichenparkett naturgeölt in Wohn- und Schlafzimmer
- Plattenboden in den Nasszellen
- moderne und offenen Küche mit Induktionsherd
- Nasszelle mit Dusche/WC
- Reduit
- Eigener Waschturm
- Balkon
- Kellerabteil
- Lift

Zusätzlich auf Wunsch: Einstellplatz Tiefgarage, ab CHF 135.00/Monat

Hinweis: Die abgebildeten Fotos stammen von einer typenähnlichen Wohnung und können in Ausstattung und Grundriss leicht variieren. Sie dienen lediglich dazu, die Materialisierung der Wohnungen zu veranschaulichen.

Erfahren Sie mehr über die verschiedenen Wohnungstypen auf der Projektwebseite unter www.mattenstrasse-guemligen.ch

Haben wir Ihr Interesse geweckt? Dann zögern Sie nicht und kontaktieren Sie uns.
240 m
Öffentlicher Verkehr
1 km
Einkaufsmöglichkeit
1 km
Schule / Kindergarten
1.8 km
Stadtzentrum
eckdaten Lift
haustiere Haustiere erlaubt
kinderfreundlich Kinder-freundlich
Garage Garage / Parkplatz

Weitere Objekte von Regimo Bern