© 2025 Regimo Bern

Sonnige Aussichten für Familien - wohnen mit Gartenterrasse

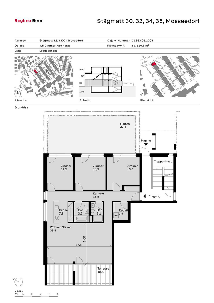
Sie werden es möglicherweise bereuen, wenn Sie zu spät kommen. Denn diese Wohnung befindet sich an zentraler Lage und dennoch im Grünen. Sie ist geräumig, modern ausgestattet und überzeugt durch ein faires Preis-Leistungsverhältnis.

Für Ihre Wohnqualität:
- offene Küche mit Glaskeramik und Geschirrspüler
- Nasszelle mit Bad/WC
- Nasszelle mit Dusche/WC
- Parkettboden in Wohn- und Schlafzimmer
- Plattenboden in Küche und Nasszellen
- Reduit mit eigenem Waschturm
- Terrasse
- Kellerabteil

Zusätzlich auf Wunsch: Einstellplatz Tiefgarage, ab CHF 140.00/Monat

Hinweis: Die abgebildeten Fotos stammen von einer typenähnlichen Wohnung und können in Ausstattung und Grundriss leicht variieren. Sie dienen lediglich dazu, die Materialisierung der Wohnungen zu veranschaulichen.

Erfahren Sie mehr über die verschiedenen Wohnungstypen auf der Projektwebseite unter www.staegmatt2.ch 

Interessiert? Dann lohnt sich eine Besichtigung.
350 m
Öffentlicher Verkehr
550 m
Einkaufsmöglichkeit
1.7 km
Schule / Kindergarten
650 m
Stadtzentrum
aussicht Aussicht
haustiere Haustiere erlaubt
balkon Balkon / Sitzplatz
kinderfreundlich Kinder-freundlich
Garage Garage / Parkplatz

Weitere Objekte von Regimo Bern