© 2026 Regimo Bern

Ruhige Wohnlage im Grünen

Sie werden es möglicherweise bereuen, wenn Sie zu spät kommen. Denn diese Wohnung befindet sich an zentraler Lage und dennoch im Grünen.

Einkauf, Restaurants, öffentlicher Verkehr und ein Gesundheitszentrum gibt's gleich um die Ecke - und in Schrittweite findet man sich in einem der schönsten Naherholungsgebiete am Tor zum Berner Oberland wieder.

Für Ihre Wohnqualität:
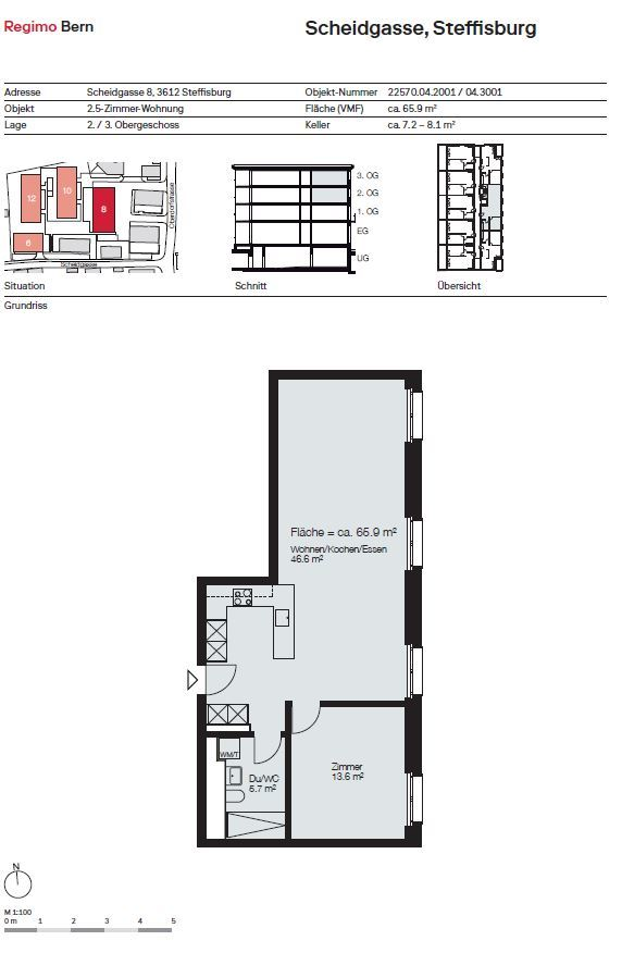
- Parkett- Plattenböden
- Küche mit Induktionskochfeld und Geschirrspüler
- Nasszelle mit Dusche/WC
- Waschmaschine/Tumbler in der Wohnung
- Garderobenschränke
- kein Balkon
- Keller

Zusätzlich auf Wunsch: Einstellplatz, ab CHF 130.00/Monat

Weitere Informationen zur Wohnüberbauung Scheidgasse und den verfügbaren Wohnungen, erhalten Sie unter www.scheidgasse.ch

Interessiert? Dann lohnt sich eine Besichtigung vor Ort.
100 m
Öffentlicher Verkehr
100 m
Einkaufsmöglichkeit
300 m
Schule / Kindergarten
2 km
Stadtzentrum
eckdaten Lift
haustiere Haustiere erlaubt
kinderfreundlich Kinder-freundlich
Garage Garage / Parkplatz

Weitere Objekte von Regimo Bern