© 2026 Regimo Bern

MIETEN OHNE KAUTION - zentrale Wohnung für Geniesser

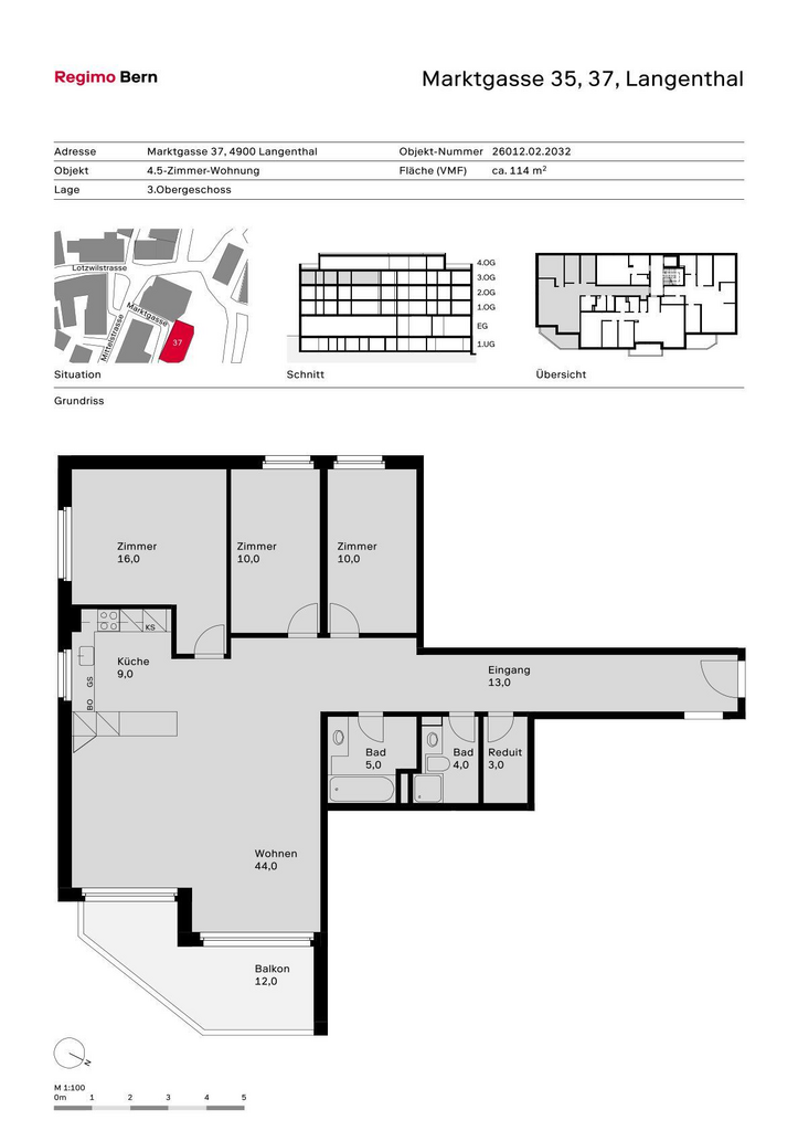
Diese zentrale Stadtwohnung eignet sich perfekt für Familien mit Kindern. Schulen, Anschlüsse an den öffentlichen Verkehr sowie attraktive Einkaufsmöglichkeiten befinden sich praktisch vor der Haustüre.

Für Ihre Wohnqualität:
  • Küche mit Glaskeramikherd und Geschirrspüler
  • Platten- und Parkettböden
  • Nasszelle mit Bad/WC
  • Nasszelle mit Dusche/WC
  • Kellerabteil
  • Lift
  • Balkon
Zusätzlich auf Wunsch: Einstellplatz Tiefgarage, ab CHF 120.00/Monat

Bei diesem Mietobjekt müssen Sie nicht wie üblich drei Monatsmieten als Kaution auf ein Sperrkonto einzahlen. So bleiben Sie liquid, da nicht eine grössere Geldsumme für die Dauer Ihres Mietverhältnisses blockiert ist. Und das Beste: Das Angebot "Mieten ohne Kaution" ist für Sie gratis. Erfahren Sie mehr auf https://regimo.ch/kaution oder auf dem Flyer in der Fotoserie des Inserates.

Hinweis: Die abgebildeten Fotos stammen von einer typenähnlichen Wohnung und können in Ausstattung und Grundriss leicht variieren. Sie dienen lediglich dazu, die Materialisierung der Wohnungen zu veranschaulichen.

Interessiert? Dann lohnt sich eine Besichtigung.
Garage Garage / Parkplatz

Weitere Objekte von Regimo Bern