© 2026 Regimo Bern

MIETEN OHNE KAUTION - Wundervolle Lage mit Sicht auf den See

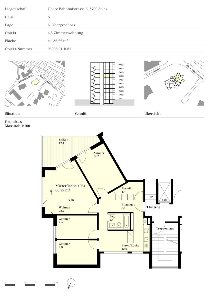
Die wundervolle Lage Nähe Thunersee, die vielfältigen Freizeitangebote und das breite Angebot an Dienstleistern im Dorf sorgen für eine hohe Lebensqualität. Es erwartet Sie eine helle Wohnung mit zeitgemässem Komfort und ein Schwimmbad, welches nur für die Hausbewohner zur Verfügung steht. Diverse Einkaufsmöglichkeiten und der öffentliche Verkehr befinden sich in der Nähe.

 Für Ihre Wohnqualität:
-Küche mit Glaskeramikkochfeld und Geschirrspüler
-Nasszelle mit Bad/WC
-Parkett/ Plattenboden
-Wandschränke
-Reduit
-Balkon mit Verglasung
-Kellerabteil
-Lift

Zusätzlich auf Wunsch: Einstellhallenplatz für CHF 110.00/ monatlich

Bei diesem Mietobjekt müssen Sie nicht wie üblich drei Monatsmieten als Kaution auf ein Sperrkonto einzahlen. So bleiben Sie liquid, da nicht eine grössere Geldsumme für die Dauer Ihres Mietverhältnisses blockiert ist. Und das Beste: Das Angebot "Mieten ohne Kaution" ist für Sie gratis. Erfahren Sie mehr auf https://regimo.ch/kaution oder auf dem Flyer in der Fotoserie des Inserates.

Hinweis: Die abgebildeten Fotos stammen von einer typenähnlichen Wohnung und können in Ausstattung und Grundriss leicht variieren. Sie dienen lediglich dazu, die Materialisierung der Wohnungen zu veranschaulichen.

Interessiert? Dann lohnt sich eine Besichtigung.
450 m
Öffentlicher Verkehr
350 m
Einkaufsmöglichkeit
1 km
Schule / Kindergarten
1.2 km
Stadtzentrum
eckdaten Lift
haustiere Haustiere erlaubt
kinderfreundlich Kinder-freundlich

Weitere Objekte von Regimo Bern