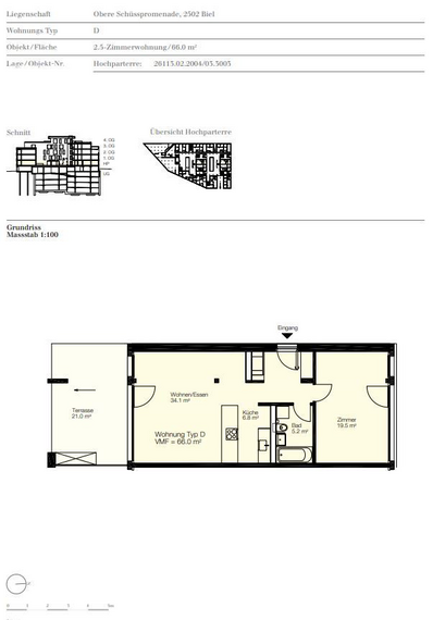
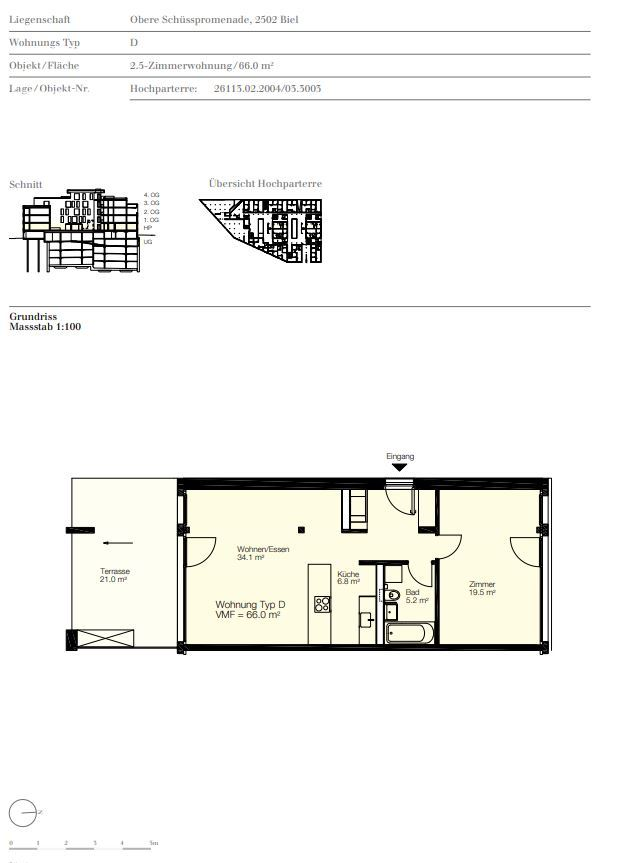
Stilvoll und mit modernem Wohnkomfort eignet sich diese Wohnung für Paare und Einzelpersonen. Das Wohnhaus liegt in der Nähe des Zentrums von Biel. Öffentliche Verkehrsmittel mit Verbindungen in alle Richtungen sowie Einkaufmöglichkeiten befinden sich in unmittelbarer Nähe.
Für Ihre Wohnqualität: - offene Küche mit Glaskeramik und Geschirrspüler - Nasszelle mit Bad/WC - eigene Waschmaschine und eigener Tumbler - Wandschränke im Korridor - grosszügige Terrasse - Kellerabteil - Lift
Bei diesem Mietobjekt müssen Sie nicht wie üblich drei Monatsmieten als Kaution auf ein Sperrkonto einzahlen. So bleiben Sie liquid, da nicht eine grössere Geldsumme für die Dauer Ihres Mietverhältnisses blockiert ist. Und das Beste: Das Angebot "Mieten ohne Kaution" ist für Sie gratis. Erfahren Sie mehr auf https://regimo.ch/kaution oder auf dem Flyer in der Fotoserie des Inserates.
Hinweis: Die abgebildeten Fotos stammen von einer typenähnlichen Wohnung und können in Ausstattung und Grundriss leicht variieren. Sie dienen lediglich dazu, die Materialisierung der Wohnungen zu veranschaulichen.