© 2026 Regimo Bern

MIETEN OHNE KAUTION - Wohnen in lebendigem Stadtquartier

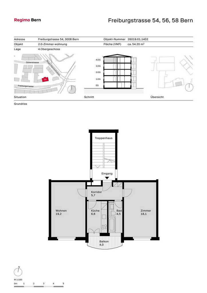
Diese zentral gelegene Wohnsiedlung ist voller Leben. Sie ist ideal für Paare oder Einzelpersonen, die eine gute Anbindung an den öffentlichen Verkehr zu schätzen wissen.

Für Ihre Wohnqualität:
- abgeschlossene Küche mit Glaskeramikherd
- Parkett - und Plattenböden
- Nasszelle mit Bad/WC
- Wandschrank in Korridor
- Balkon mit herrlicher Aussicht
- Keller- und Estrichabteil

Die Liegenschaft hat keinen Lift.

Interessiert? Dann lohnt sich eine Besichtigung.
110 m
Öffentlicher Verkehr
1 km
Einkaufsmöglichkeit
2.5 km
Schule / Kindergarten
1.6 km
Stadtzentrum
aussicht Aussicht
balkon Balkon / Sitzplatz
Garage Garage / Parkplatz

Weitere Objekte von Regimo Bern