© 2025 Regimo Bern

MIETEN OHNE KAUTION - Wohnen in lebendigem Stadtquartier

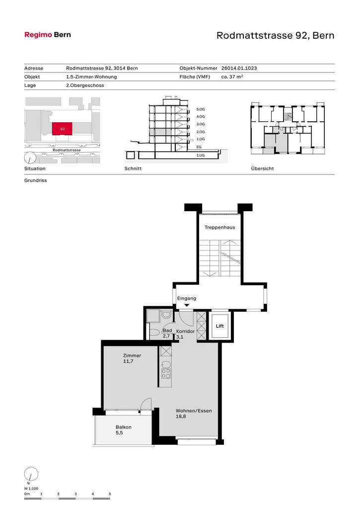
Sie werden es möglicherweise bereuen, wenn Sie zu spät kommen. Denn diese Wohnung befindet sich in einem lebendigen Stadtquartier mit Einkaufsmöglichkeiten in unmittelbarer Nähe. Sie ist ideal für Einzelpersonen, die eine optimale Anbindung an den öffentlichen Verkehr zu schätzen wissen.

Für Ihre Wohnqualität:
- Küche mit Granitabdeckung, Geschirrspüler und Glaskeramikherd
- Parkett- und Plattenböden
- Nasszelle mit Dusche/WC
- Einbauschränke beim Eingang
- Balkon
- Keller- und Estrichabteil
- Lift

Bei diesem Mietobjekt müssen Sie nicht wie üblich drei Monatsmieten als Kaution auf ein Sperrkonto einzahlen. So bleiben Sie liquid, da nicht eine grössere Geldsumme für die Dauer Ihres Mietverhältnisses blockiert ist. Und das Beste: Das Angebot "Mieten ohne Kaution" ist für Sie gratis. Erfahren Sie mehr auf https://regimo.ch/kaution oder auf dem Flyer in der Fotoserie des Inserates.

Hinweis: Die abgebildeten Fotos stammen von einer typenähnlichen Wohnung und können in Ausstattung und Grundriss leicht variieren. Sie dienen lediglich dazu, die Materialisierung der Wohnungen zu veranschaulichen.

Interessiert? Dann lohnt sich eine Besichtigung.
200 m
Öffentlicher Verkehr
190 m
Einkaufsmöglichkeit
500 m
Schule / Kindergarten
1.6 km
Stadtzentrum
eckdaten Lift
aussicht Aussicht
balkon Balkon / Sitzplatz
Garage Garage / Parkplatz

Weitere Objekte von Regimo Bern