© 2026 Regimo Bern

MIETEN OHNE KAUTION - Urbanes Feeling an zentraler Lage

Diese zentral gelegene Wohnsiedlung ist voller Leben. Sie ist ideal für Paare oder Kleinfamilien die eine gute Anbindung an den öffentlichen Verkehr zu schätzen wissen.

Für Ihre Wohnqualität:
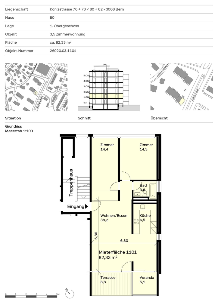
- Küche mit Glaskeramikherd und Geschirrspüler
- Parkettboden in Wohn- und Schlafzimmer
- Nasszelle mit Bad/WC
- grosser Balkon
- Kellerabteil
- Lift

Zusätzlich auf Wunsch: Einstellplatz Tiefgarage, ab CHF 120.00/Monat

Bei diesem Mietobjekt müssen Sie nicht wie üblich drei Monatsmieten als Kaution auf ein Sperrkonto einzahlen. So bleiben Sie liquid, da nicht eine grössere Geldsumme für die Dauer Ihres Mietverhältnisses blockiert ist. Und das Beste: Das Angebot "Mieten ohne Kaution" ist für Sie gratis. Erfahren Sie mehr auf
https://regimo.ch/kaution oder auf dem Flyer in der Fotoserie des Inserates.

Hinweis:
 Die abgebildeten Fotos stammen von einer typenähnlichen Wohnung und können in Ausstattung und Grundriss leicht variieren. Sie dienen lediglich dazu, die Materialisierung der Wohnungen zu veranschaulichen.

Interessiert? Dann lohnt sich eine Besichtigung.
eckdaten Lift
aussicht Aussicht
balkon Balkon / Sitzplatz

Weitere Objekte von Regimo Bern