© 2026 Regimo Bern

MIETEN OHNE KAUTION - Suchen Sie Ihre erste Wohnung?

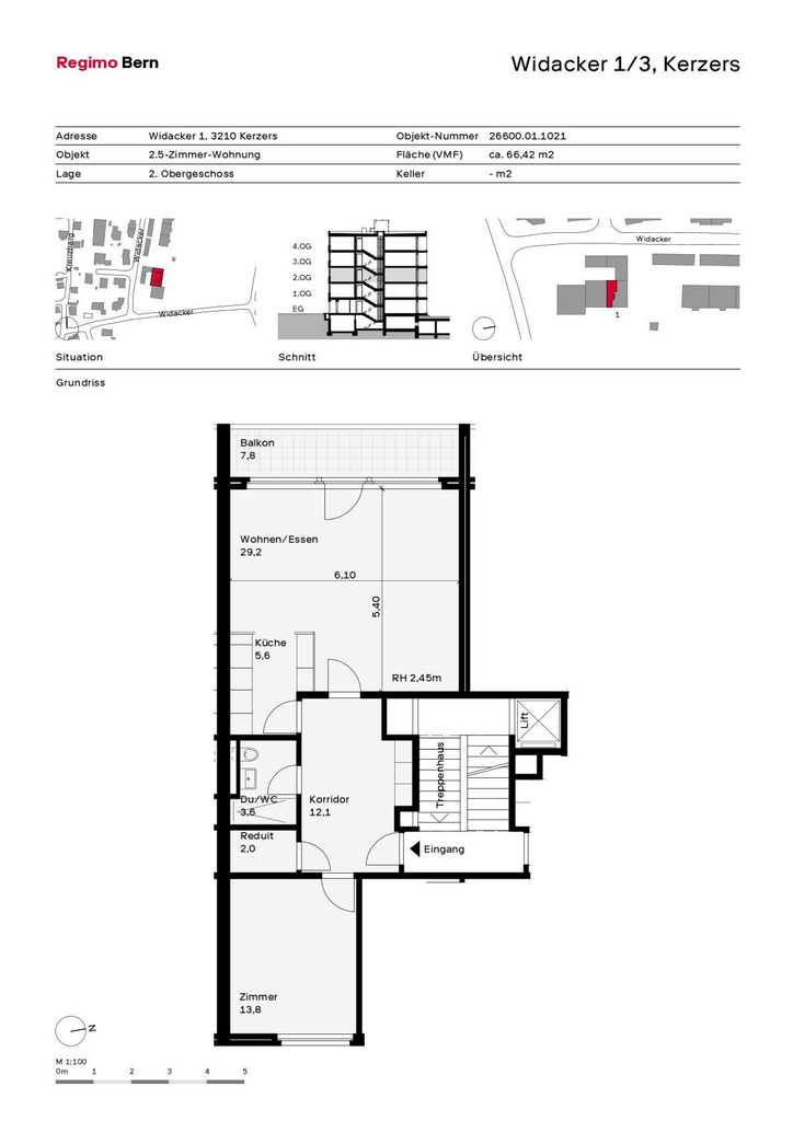
Falls Sie eine Aussicht ins Grüne in gepflegter Umgebung geniessen möchten, ist diese geräumige Wohnung mit zeitgemässem Komfort genau das Richtige für Sie. Einkaufsmöglichkeiten sind in wenigen Gehminuten erreichbar. Auch der nächste Autobahnanschluss ist in unmittelbarer Nähe.

Für Ihre Wohnqualität:
- Küche mit Glaskeramik und Geschirrspüler
- Nasszelle mit Bad/WC
- Laminat-, Lino- und Parkettböden
- Einbauschrank im Korridor
- Reduit
- Balkon

Bei diesem Mietobjekt müssen Sie nicht wie üblich drei Monatsmieten als Kaution auf ein Sperrkonto einzahlen. So bleiben Sie liquid, da nicht eine grössere Geldsumme für die Dauer Ihres Mietverhältnisses blockiert ist. Und das Beste: Das Angebot "Mieten ohne Kaution" ist für Sie gratis. Erfahren Sie mehr auf
https://regimo.ch/kaution oder auf dem Flyer in der Fotoserie des Inserates.

Hinweis: Die abgebildeten Fotos stammen von einer typenähnlichen Wohnung und können in Ausstattung und Grundriss leicht variieren. Sie dienen lediglich dazu, die Materialisierung der Wohnungen zu veranschaulichen.

Interessiert? Dann lohnt sich eine Besichtigung.
eckdaten Lift
aussicht Aussicht
balkon Balkon / Sitzplatz

Weitere Objekte von Regimo Bern