© 2025 Regimo Bern

MIETEN OHNE KAUTION - Stadtleben in Bestlage

Lebensqualität in der Stadt Bern. Schönberg Ost, ein urbanes Wohnquartier im Herzen der beliebten und exklusiven Wohngegend Schosshalde. Ideale Verkehrslage und hoher Freizeitwert - hier finden Sie Luxus auf eine andere Art. Von Schönberg-Ost aus bietet sich ein herrlicher Blick bis weit in die Jurahöhen, über den Bantiger bis hin zum Gurten. Aus der Ferne grüssen die schneebedeckten Gipfel der Berner Alpen.

Für Ihre Wohnqualität
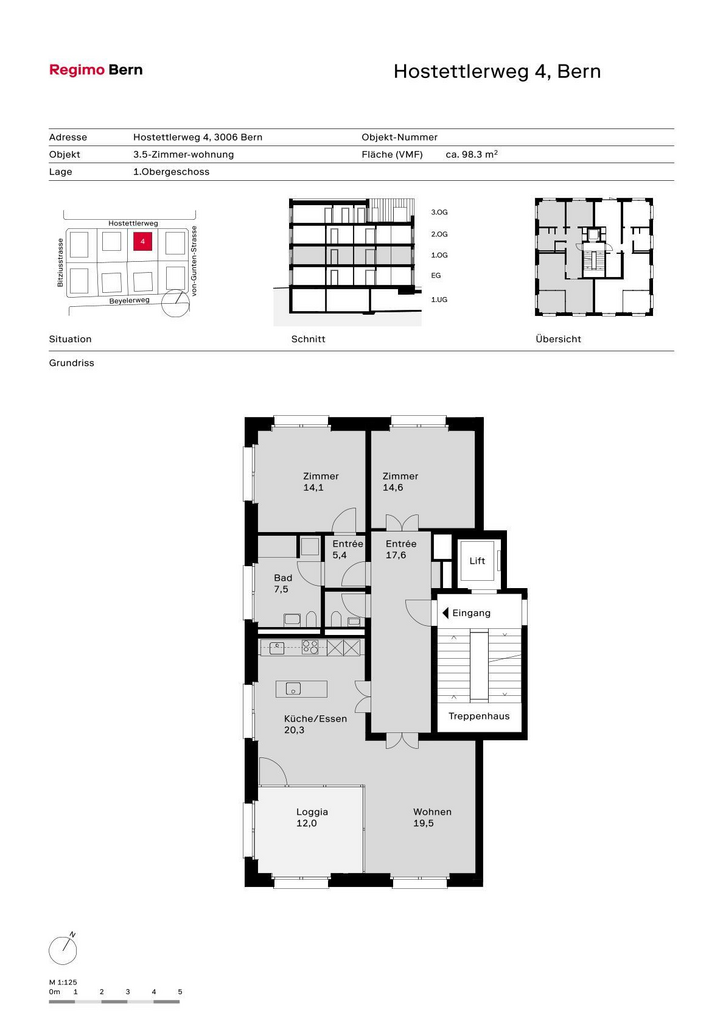
- Parkett- und Plattenböden
- offene Wohnküche mit Geschirrspüler und Glaskeramikherd
- Nasszelle mit WC/Dusche
- Nasszelle mit separatem WC
- eigener Waschturm
- Loggia
- Keller
- Lift

Zusätzlich auf Wunsch: Einstellplatz Tiefgarage, ab CHF 150.00/Monat

Bei diesem Mietobjekt müssen Sie nicht wie üblich drei Monatsmieten als Kaution auf ein Sperrkonto einzahlen. So bleiben Sie liquid, da nicht eine grössere Geldsumme für die Dauer Ihres Mietverhältnisses blockiert ist. Und das Beste: Das Angebot "Mieten ohne Kaution" ist für Sie gratis. Erfahren Sie mehr auf https://regimo.ch/kaution oder auf dem Flyer in der Fotoserie des Inserates.

Weitere Informationen zu den verfügbaren Wohnungen, erhalten Sie
unter: 
www.schoenberg-ost-miete.ch 

Interessiert? Dann lohnt sich eine Besichtigung.
200 m
Öffentlicher Verkehr
900 m
Einkaufsmöglichkeit
140 m
Schule / Kindergarten
900 m
Stadtzentrum
eckdaten Lift
haustiere Haustiere erlaubt
balkon Balkon / Sitzplatz
kinderfreundlich Kinder-freundlich
Garage Garage / Parkplatz

Weitere Objekte von Regimo Bern