© 2026 Regimo Bern

MIETEN OHNE KAUTION - Lebensqualität für die ganze Familie

Dieses Angebot richtet sich in erster Linie an Kleinfamilien. Besonders vorteilhaft sind die Schulen in unmittelbarer Nähe und die zu Fuss erreichbaren zahlreichen Einkaufs- und Unterhaltungsmöglichkeiten.

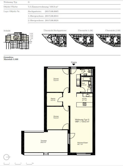
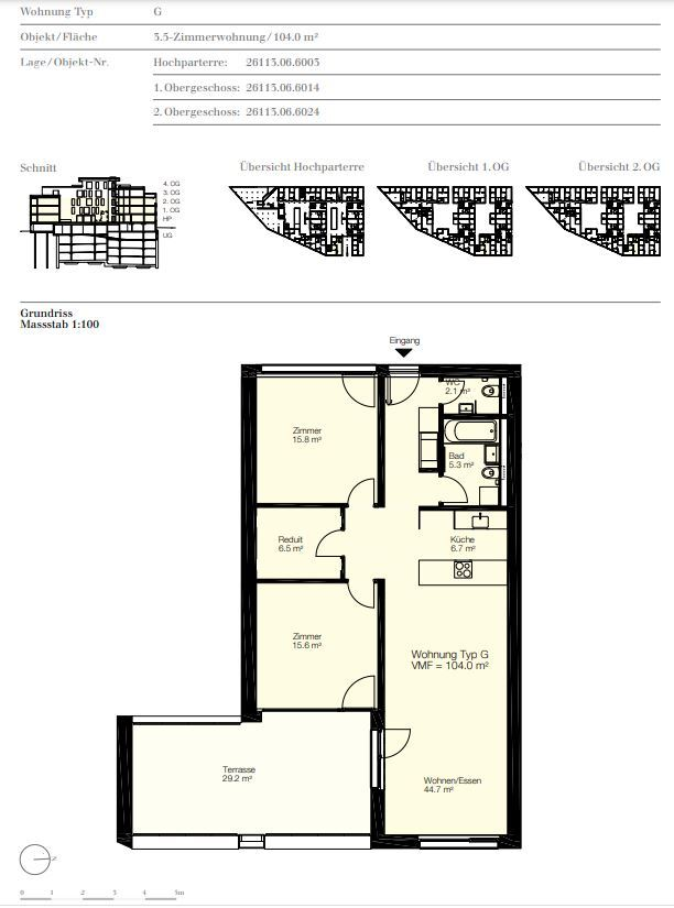
Für Ihre Wohnqualität:
- offene Küche mit Glaskeramik und Geschirrspüler
- Parkettboden in Wohn- und Schlafzimmer
- Plattenboden in Küche und Nasszelle
- Nasszelle mit Bad/WC
- separates WC
- eigener Waschturm
- grosszügige Terrasse
- Kellerabteil
- Lift

Bei diesem Mietobjekt müssen Sie nicht wie üblich drei Monatsmieten als Kaution auf ein Sperrkonto einzahlen. So bleiben Sie liquid, da nicht eine grössere Geldsumme für die Dauer Ihres Mietverhältnisses blockiert ist. Und das Beste: Das Angebot "Mieten ohne Kaution" ist für Sie gratis. Erfahren Sie mehr auf https://regimo.ch/kaution oder auf dem Flyer in der Fotoserie des Inserates.

Interessiert? Dann lohnt sich eine Besichtigung.

Nähere Details finden Sie auch unter www.schuesspromenade.ch
140 m
Öffentlicher Verkehr
90 m
Einkaufsmöglichkeit
850 m
Schule / Kindergarten
4 km
Stadtzentrum
eckdaten Lift
aussicht Aussicht
haustiere Haustiere erlaubt
balkon Balkon / Sitzplatz
kinderfreundlich Kinder-freundlich
Garage Garage / Parkplatz

Weitere Objekte von Regimo Bern