© 2026 Regimo Bern

MIETEN OHNE KAUTION - Lebendiges Quartier nahe dem Städtchen Murten

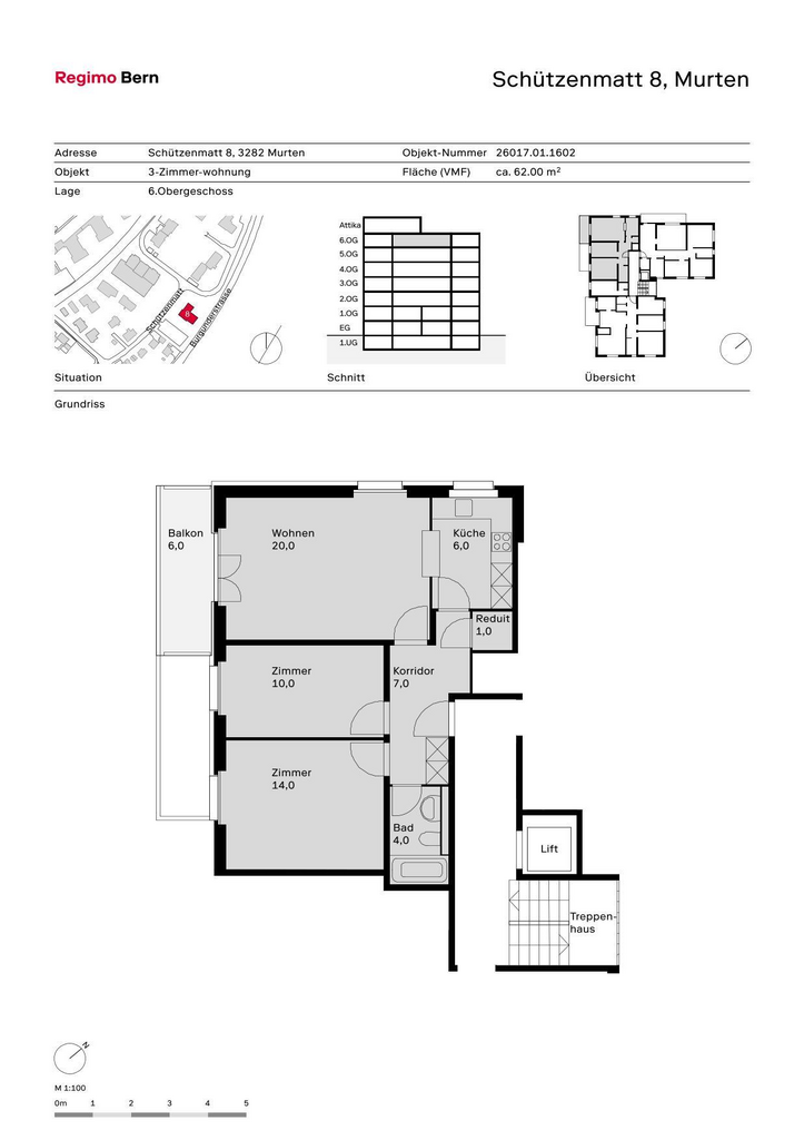
In einer gepflegten Wohnsiedlung steht diese zeitgemässe und komfortable Wohnung für Sie bereit. Das charmante Dörfchen Murten, den öffentlichen Verkehr sowie den Murtensee erreichen Sie in wenigen Gehminuten.

Für Ihre Wohnqualität:
- abgeschlossene Küche mit Glaskeramik und Geschirrspüler
- Parkett- und Plattenböden
- Nasszelle mit Badewanne/WC
- Balkon
- Reduit
- Lift
- Keller

Zusätzlich auf Wunsch: Einstellhallenplatz für CHF 100.00/ monatlich.

Die Fotos stammen von einer typenähnlichen Wohnung.

Bei diesem Mietobjekt müssen Sie nicht wie üblich drei Monatsmieten als Kaution auf ein Sperrkonto einzahlen. So bleiben Sie liquid, da nicht eine grössere Geldsumme für die Dauer Ihres Mietverhältnisses blockiert ist. Und das Beste: Das Angebot "Mieten ohne Kaution" ist für Sie gratis. Erfahren Sie mehr auf https://regimo.ch/kaution oder auf dem Flyer in der Fotoserie des Inserates.

Interessiert? Dann lohnt sich eine Besichtigung.
750 m
Öffentlicher Verkehr
700 m
Einkaufsmöglichkeit
600 m
Schule / Kindergarten
1.8 km
Stadtzentrum
eckdaten Lift
aussicht Aussicht
balkon Balkon / Sitzplatz
kinderfreundlich Kinder-freundlich
Garage Garage / Parkplatz

Weitere Objekte von Regimo Bern