© 2026 Regimo Bern

MIETEN OHNE KAUTION - Hier könnte Ihr Wohntraum in Erfüllung gehen

In einer gepflegten Überbauung an städtischer, belebter Lage erwartet Sie eine zeitgemäss ausgestattete Wohnung. Diverse Einkaufsmöglichkeiten sind in wenigen Minuten zu Fuss erreichbar. Tram- und Busstation befinden sich fast vor der Haustür. Sehr bequem gelegen ist auch der nahe Hauptbahnhof.

Für Ihre Wohnqualität:
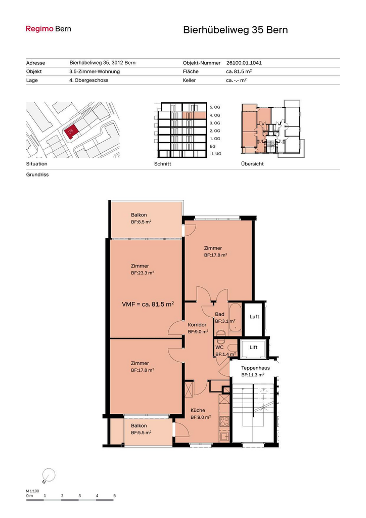
- Abgeschlossene Küche mit Glaskeramikkochfeld
- Platten- und Parkettböden
- Nasszelle mit Badewanne/WC
- Nasszelle mit separatem WC
- Einbauschränke im Korridor und in den Zimmern
- Balkon
- Keller

Bei diesem Mietobjekt müssen Sie nicht wie üblich drei Monatsmieten als Kaution auf ein Sperrkonto einzahlen. So bleiben Sie liquid, da nicht eine grössere Geldsumme für die Dauer Ihres Mietverhältnisses blockiert ist. Und das Beste: Das Angebot "Mieten ohne Kaution" ist für Sie gratis. Erfahren Sie mehr auf https://regimo.ch/kaution oder auf dem Flyer in der Fotoserie des Inserates.

Hinweis: Die abgebildeten Fotos stammen von einer typenähnlichen Wohnung und können in Ausstattung und Grundriss leicht variieren. Sie dienen lediglich dazu, die Materialisierung der Wohnungen zu veranschaulichen.

Interessiert? Dann lohnt sich eine Besichtigung.
100 m
Öffentlicher Verkehr
500 m
Einkaufsmöglichkeit
500 m
Schule / Kindergarten
eckdaten Lift
aussicht Aussicht
balkon Balkon / Sitzplatz

Weitere Objekte von Regimo Bern