© 2026 Regimo Bern

MIETEN OHNE KAUTION - Hier könnte Ihr Wohntraum in Erfüllung gehen

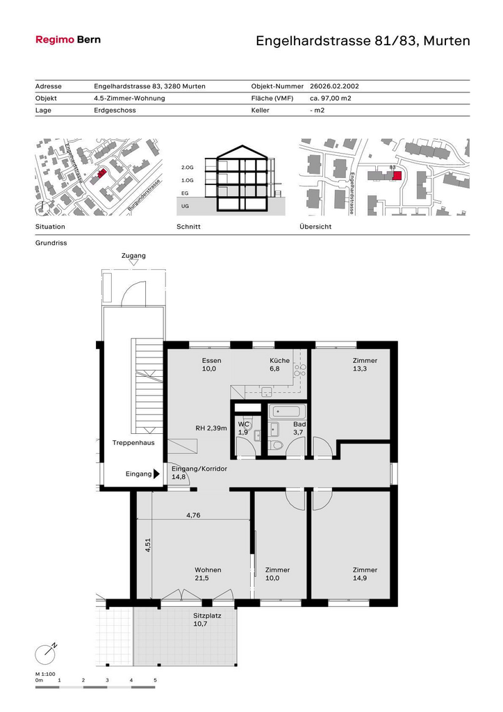
Günstige Verkehrslage, attraktiver Grundriss, moderne Ausstattung, viel Licht und Luft: Diese Vorzüge machen diese Wohnung zu einem besonders begehrten Ort zum Leben und Sein. Eine Kleinfamilie oder ein Paar mit hohen Ansprüchen an Ausstattung und Komfort wird sich hier vom ersten Tag an wohl- und heimisch fühlen.

Für Ihre Wohnqualität:
- offene Küche mit Glaskeramik-Kochfeld und Essecke
- Plattenboden in Küche und Nasszelle
- Nasszelle mit Bad und WC
- Garderobe beim Eingang
- Einbauschränke im Korridor
- grosse Terrasse
- Kellerabteil

Zusätzlich auf Wunsch: Einstellplatz Tiefgarage, ab CHF 110.00/Monat

Bei diesem Mietobjekt müssen Sie nicht wie üblich drei Monatsmieten als Kaution auf ein Sperrkonto einzahlen. So bleiben Sie liquid, da nicht eine grössere Geldsumme für die Dauer Ihres Mietverhältnisses blockiert ist. Und das Beste: Das Angebot "Mieten ohne Kaution" ist für Sie gratis. Erfahren Sie mehr auf https://regimo.ch/kaution oder auf dem Flyer in der Fotoserie des Inserates.

Hinweis: Die abgebildeten Fotos stammen von einer typenähnlichen Wohnung und können in Ausstattung und Grundriss leicht variieren. Sie dienen lediglich dazu, die Materialisierung der Wohnungen zu veranschaulichen.

Interessiert? Dann lohnt sich eine Besichtigung.
aussicht Aussicht
balkon Balkon / Sitzplatz

Weitere Objekte von Regimo Bern