© 2026 Regimo Bern

MIETEN OHNE KAUTION - Hier könnte Ihr Wohntraum in Erfüllung gehen

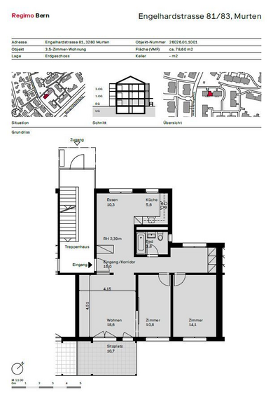
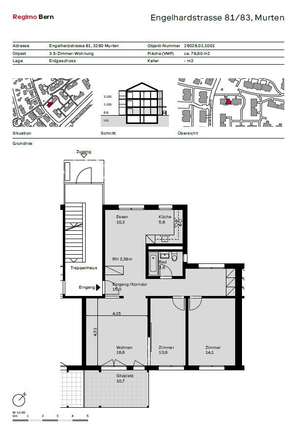
Günstige Verkehrslage, attraktiver Grundriss sowie viel Licht und Luft: Diese Vorzüge machen die Wohnung zu einem besonders begehrten Ort zum Leben und Wohlfühlen. Singles oder Paare, die Komfort schätzen, werden sich hier vom ersten Tag an heimisch fühlen.

Für Ihre Wohnqualität:

- offene Küche mit Glaskeramik-Kochfeld, Geschirrspüler und Essecke

- Parkettboden Wohn- und Schlafzimmer

- Plattenboden in Küche und Nasszelle

- Nasszelle mit Bad und WC

- Garderobe beim Eingang

- Gartensitzplatz

- Kellerabteil


Zusätzlich auf Wunsch: Einstellhallenplatz, ab CHF 110.00/Monat


Bei diesem Mietobjekt müssen Sie nicht wie üblich drei Monatsmieten als Kaution auf ein Sperrkonto einzahlen. So bleiben Sie liquid, da nicht eine grössere Geldsumme für die Dauer Ihres Mietverhältnisses blockiert ist. Und das Beste: Das Angebot "Mieten ohne Kaution" ist für Sie gratis. Erfahren Sie mehr auf https://regimo.ch/kaution oder auf dem Flyer in der Fotoserie des Inserates.

Hinweis: Die abgebildeten Fotos stammen von einer typenähnlichen Wohnung und können in Ausstattung und Grundriss leicht variieren. Sie dienen lediglich dazu, die Materialisierung der Wohnungen zu veranschaulichen.


Interessiert? Dann lohnt sich eine Besichtigung.

balkon Balkon / Sitzplatz

Weitere Objekte von Regimo Bern