© 2026 Regimo Bern

MIETEN OHNE KAUTION - Hier könnte es Ihnen gefallen

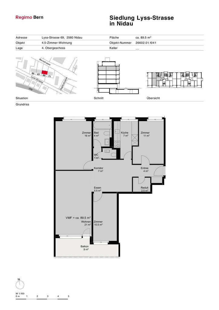
Die Wohnung befindet sich in einem gepflegten Mehrfamilienhaus. Einkaufsmöglichkeiten und Anschluss an den öffentlichen Verkehr sind in nächster Nähe vorhanden.

Für Ihre Wohnqualität:
- abgeschlossene Küche mit Plattenherd
- Parkettboden in Wohn- und Schlafzimmer
- Nasszelle mit Bad/WC
- Einbauschränke im Korridor
- Balkon
- Reduit
- Kellerabteil
- Lift

Zusätzlich auf Wunsch: Einstellplatz Tiefgarage, CHF 100.00/Monat

Bei diesem Mietobjekt müssen Sie nicht wie üblich drei Monatsmieten als Kaution auf ein Sperrkonto einzahlen. So bleiben Sie liquid, da nicht eine grössere Geldsumme für die Dauer Ihres Mietverhältnisses blockiert ist. Und das Beste: Das Angebot "Mieten ohne Kaution" ist für Sie gratis. Erfahren Sie mehr auf https://regimo.ch/kaution oder auf dem Flyer in der Fotoserie des Inserates.

Hinweis: Die abgebildeten Fotos stammen von einer typenähnlichen Wohnung und können in Ausstattung und Grundriss leicht variieren. Sie dienen lediglich dazu, die Materialisierung der Wohnungen zu veranschaulichen.

Interessiert? Dann lohnt sich eine Besichtigung.
750 m
Öffentlicher Verkehr
600 m
Einkaufsmöglichkeit
450 m
Schule / Kindergarten
550 m
Stadtzentrum
eckdaten Lift
aussicht Aussicht
haustiere Haustiere erlaubt
balkon Balkon / Sitzplatz
kinderfreundlich Kinder-freundlich
Garage Garage / Parkplatz

Weitere Objekte von Regimo Bern