© 2026 Regimo Bern

MIETEN OHNE KAUTION - Grosse Terrasse, herrliche Sonnenuntergänge

Die moderne Wohnung befindet sich in einem lebendigen Stadtquartier mit Einkaufsmöglichkeiten in unmittelbarer Nähe. Sie ist ideal für Paare oder Einzelpersonen, die eine optimale Anbindung an den öffentlichen Verkehr zu schätzen wissen.

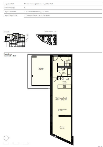
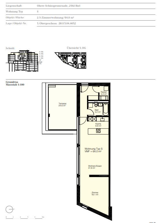
Für Ihre Wohnqualität:
- offene Küche mit Glaskeramik und Geschirrspüler
- Nasszelle mit Bad/WC
- Nasszelle mit separatem WC
- eigene Waschmaschine und eigener Tumbler
- Wandschränke im Korridor
- grosse Terrasse (24.6m2)
- Kellerabteil
- Lift

Weitere detaillierte Informationen finden Sie unter https://schuesspromenade.ch/.

Bei diesem Mietobjekt müssen Sie nicht wie üblich drei Monatsmieten als Kaution auf ein Sperrkonto einzahlen. So bleiben Sie liquid, da nicht eine grössere Geldsumme für die Dauer Ihres Mietverhältnisses blockiert ist. Und das Beste: Das Angebot "Mieten ohne Kaution" ist für Sie gratis. Erfahren Sie mehr auf https://regimo.ch/kaution oder auf dem Flyer in der Fotoserie des Inserates.

Hinweis: Die abgebildeten Fotos stammen von einer typenähnlichen Wohnung und können in Ausstattung und Grundriss leicht variieren. Sie dienen lediglich dazu, die Materialisierung der Wohnungen zu veranschaulichen.

Interessiert? Dann loht sich eine Besichtigung.

140 m
Öffentlicher Verkehr
90 m
Einkaufsmöglichkeit
850 m
Schule / Kindergarten
4 km
Stadtzentrum
eckdaten Lift
aussicht Aussicht
haustiere Haustiere erlaubt
balkon Balkon / Sitzplatz
Garage Garage / Parkplatz

Weitere Objekte von Regimo Bern