© 2026 Regimo Bern

MIETEN OHNE KAUTION - Genau das Richtige für Stadtmenschen

Wenn Sie in der Stadt arbeiten oder studieren und Wert auf einen kurzen Arbeits- oder Studienweg legen, entspricht dieses Angebot genau Ihren Bedürfnissen.

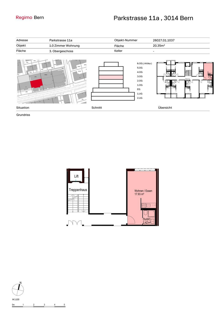
Die frisch sanierte, kleine aber komfortabel ausgestattete Wohnung befindet sich an der Parkstrasse 11a im beliebten Breitsch-Quartier in Bern. Das lebendige Quartier überzeugt durch seine hervorragende Infrastruktur mit zahlreichen Einkaufsmöglichkeiten, Cafés und weiteren Angeboten des täglichen Bedarfs in unmittelbarer Nähe. Tram- und Bushaltestellen befinden sich praktisch vor der Haustür und sorgen für eine optimale Anbindung an den öffentlichen Verkehr. Die Wohnung eignet sich ideal für Einzelpersonen, die urbanes Wohnen in einem attraktiven und gut erschlossenen Umfeld schätzen.

Für Ihre Wohnqualität:
- Heller Wohn- und Schlafbereich mit funktionaler Raumaufteilung
- Moderne Küche mit dunkelgrünen Fronten und Natursteinabdeckung
- Nasszelle mit Dusche/WC
- Eichenparkett in den Wohnbereichen
- Lift
- Kellerabteil
- Balkon ist nicht vorhanden

Zusätzlich auf Wunsch: Einstellplatz Tiefgarage, ab CHF 150.00/Monat.

Bei diesem Mietobjekt müssen Sie nicht wie üblich drei Monatsmieten als Kaution auf ein Sperrkonto einzahlen. So bleiben Sie liquid, da nicht eine grössere Geldsumme für die Dauer Ihres Mietverhältnisses blockiert ist. Und das Beste: Das Angebot "Mieten ohne Kaution" ist für Sie gratis. Erfahren Sie mehr auf https://regimo.ch/kaution oder auf dem Flyer in der Fotoserie des Inserates.

Hinweis: Die abgebildeten Fotos stammen von einer typenähnlichen Wohnung und können in Ausstattung und Grundriss leicht variieren. Sie dienen lediglich dazu, die Materialisierung der Wohnungen zu veranschaulichen.

Interessiert? Dann lohnt sich eine Besichtigung.
eckdaten Lift

Weitere Objekte von Regimo Bern