© 2026 Regimo Bern

MIETEN OHNE KAUTION - Genau das Richtige für Stadtmenschen

Sie werden es möglicherweise bereuen, wenn Sie zu spät kommen. Denn diese schöne Wohnung befindet sich in einem lebendigen Stadtquartier mit Einkaufsmöglichkeiten in unmittelbarer Nähe. Sie ist ideal für Einzelpersonen oder Paare, die eine optimale Anbindung an den öffentlichen Verkehr zu schätzen wissen.

Für Ihre Wohnqualität:
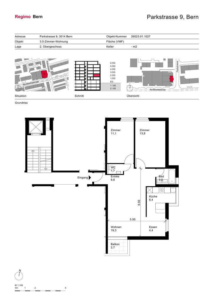
- moderne, helle Küche mit Granitabdeckung, Geschirrspüler und Glaskeramikherd
- Parkett- und Plattenböden
- moderne Nasszelle mit Bad/WC
- moderne Nasszelle mit sep. WC
- Balkon
- Keller
- Lift

Zusätzlich auf Wunsch: Einstellplatz Tiefgarage, ab CHF 150.00/Monat

Bei diesem Mietobjekt müssen Sie nicht wie üblich drei Monatsmieten als Kaution auf ein Sperrkonto einzahlen. So bleiben Sie liquid, da nicht eine grössere Geldsumme für die Dauer Ihres Mietverhältnisses blockiert ist. Und das Beste: Das Angebot "Mieten ohne Kaution" ist für Sie gratis. Erfahren Sie mehr auf https://regimo.ch/kaution oder auf dem Flyer in der Fotoserie des Inserates.

Hinweis: Die abgebildeten Fotos stammen von einer typenähnlichen Wohnung und können in Ausstattung und Grundriss leicht variieren. Sie dienen lediglich dazu, die Materialisierung der Wohnungen zu veranschaulichen.

Interessiert? Dann lohnt sich eine Besichtigung.
eckdaten Lift
aussicht Aussicht
balkon Balkon / Sitzplatz

Weitere Objekte von Regimo Bern