© 2026 Regimo Bern

MIETEN OHNE KAUTION - Genau das Richtige für Stadtmenschen

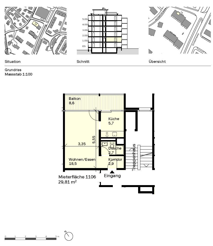
Wenn Sie in der Stadt arbeiten und Wert auf einen kurzen Arbeitsweg legen, entspricht diese Angebot bestimmt Ihren Bedürfnissen. Die kleine, aber komfortabel ausgestattete Wohnung befindet sich an zentraler Lage, Tram- und Busstation sowie Einkaufsmöglichkeiten sind in wenigen Minuten zu Fuss erreichbar.

Für Ihre Wohnqualität:
- Parkettboden im Wohn- und Schlafbereich
- Einbauschränke beim Eingang
- Nasszelle mit Dusche/WC
- grosser Balkon
- Kellerabteil
- Lift

Zusätzlich auf Wunsch: Einstellplatz Tiefgarage für CHF 120.00/Monat

Bei diesem Mietobjekt müssen Sie nicht wie üblich drei Monatsmieten als Kaution auf ein Sperrkonto einzahlen. So bleiben Sie liquid, da nicht eine grössere Geldsumme für die Dauer Ihres Mietverhältnisses blockiert ist. Und das Beste: Das Angebot "Mieten ohne Kaution" ist für Sie gratis. Erfahren Sie mehr auf https://regimo.ch/kaution oder auf dem Flyer in der Fotoserie des Inserates.

Hinweis: Die abgebildeten Fotos stammen von einer typenähnlichen Wohnung und können in Ausstattung und Grundriss leicht variieren. Sie dienen lediglich dazu, die Materialisierung der Wohnungen zu veranschaulichen.

Interessiert? Dann lohnt sich eine Besichtigung.
eckdaten Lift
aussicht Aussicht
balkon Balkon / Sitzplatz

Weitere Objekte von Regimo Bern