© 2026 Regimo Bern

MIETEN OHNE KAUTION - Gemütliche Wohnung in Zentrumsnähe

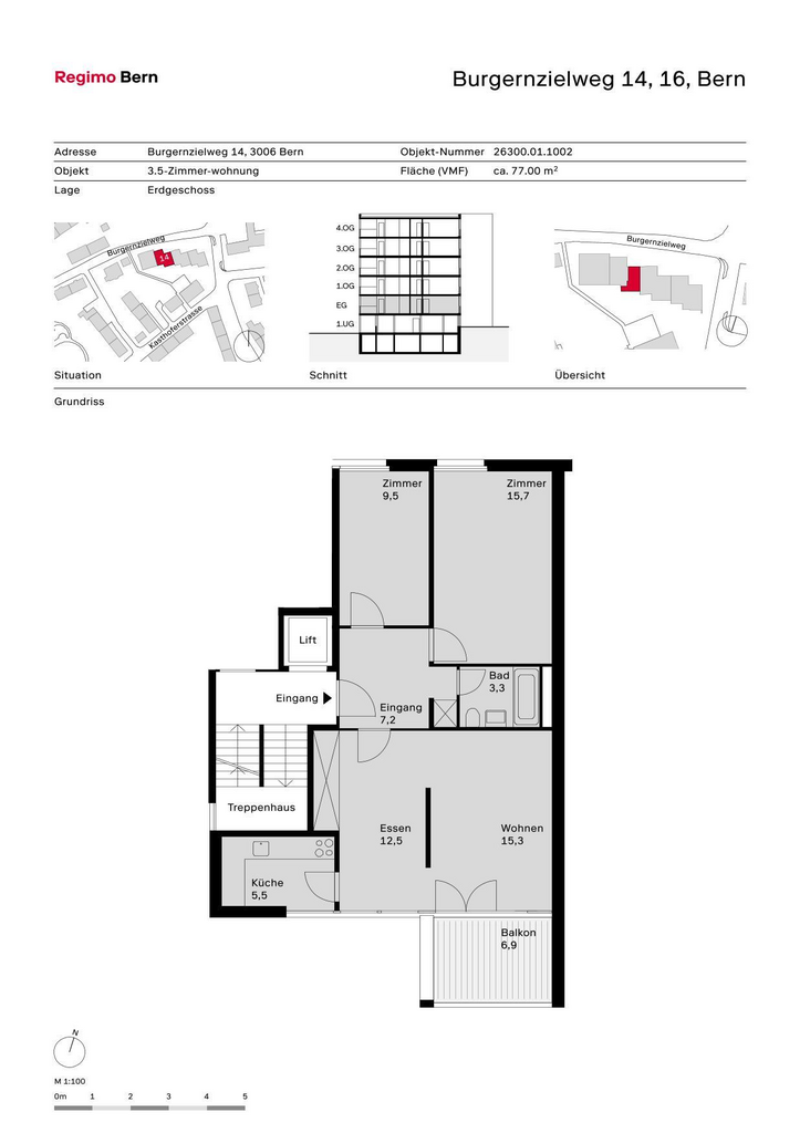
Sie werden es möglicherweise bereuen, wenn Sie zu spät kommen. Denn diese Wohnung befindet sich an zentraler Lage und dennoch im Grünen. Sie ist geräumig und überzeugt durch ein faires Preis-Leistungsverhältnis.


Für Ihre Wohnqualität:

- Küche mit Glaskeramikherd und Geschirrspüler

- Nasszelle mit Bad/WC

- Parkettboden in Wohn- und Schlafzimmer

- PVC-Boden in Küche und Nasszellen

- Wandschrank im Korridor

- Balkon

- Kellerabteil

-Lift


Bei diesem Mietobjekt müssen Sie nicht wie üblich drei Monatsmieten als Kaution auf ein Sperrkonto einzahlen. So bleiben Sie liquid, da nicht eine grössere Geldsumme für die Dauer Ihres Mietverhältnisses blockiert ist. Und das Beste: Das Angebot "Mieten ohne Kaution" ist für Sie gratis. Erfahren Sie mehr auf https://regimo.ch/kaution oder auf dem Flyer in der Fotoserie des Inserates.

Hinweis: Die abgebildeten Fotos stammen von einer typenähnlichen Wohnung und können in Ausstattung und Grundriss leicht variieren. Sie dienen lediglich dazu, die Materialisierung der Wohnungen zu veranschaulichen


Interessiert? Dann lohnt sich eine Besichtigung.

100 m
Öffentlicher Verkehr
500 m
Einkaufsmöglichkeit
500 m
Schule / Kindergarten
eckdaten Lift
balkon Balkon / Sitzplatz
kinderfreundlich Kinder-freundlich
Garage Garage / Parkplatz

Weitere Objekte von Regimo Bern