© 2026 Regimo Bern

MIETEN OHNE KAUTION - Familienfreundliches Quartier im Grünen

Verbinden Sie das Leben in einer ruhigen Wohnsiedlung mit den Vorteilen der Nähe zum Stadtzentrum. Das attraktive Preis-Leistungs-Verhältnis dieser Wohnung ist vor allem für eine junge Kleinfamilie interessant. Angenehm für Sie sind die Anbindungen der Wohnsiedlung an den öffentlichen Verkehr und die nahe gelegenen Einkaufsmöglichkeiten.

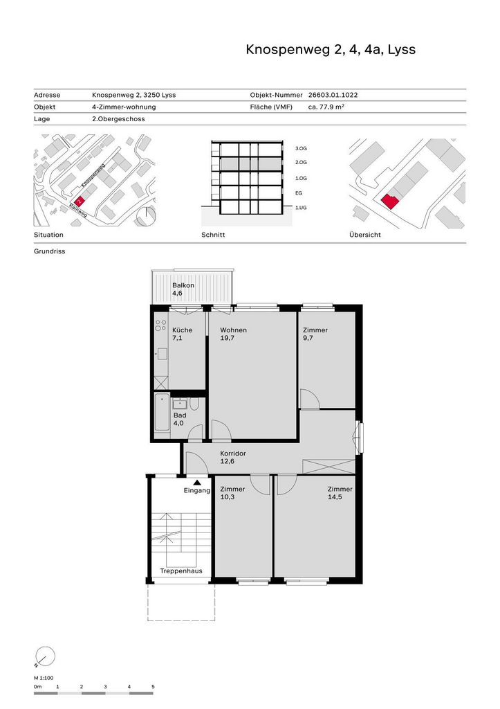
Für Ihre Wohnqualität:
- Parkettboden in Wohn-und Schlafzimmer
- Küche
- Nasszelle mit Bad/WC
- Balkon
- Keller

Die Liegenschaft hat keinen Lift.

Bei diesem Mietobjekt müssen Sie nicht wie üblich drei Monatsmieten als Kaution auf ein Sperrkonto einzahlen. So bleiben Sie liquid, da nicht eine grössere Geldsumme für die Dauer Ihres Mietverhältnisses blockiert ist. Und das Beste: Das Angebot "Mieten ohne Kaution" ist für Sie gratis. Erfahren Sie mehr auf https://regimo.ch/kaution oder auf dem Flyer in der Fotoserie des Inserates.

Hinweis: Die abgebildeten Fotos stammen von einer typenähnlichen Wohnung und können in Ausstattung und Grundriss leicht variieren. Sie dienen lediglich dazu, die Materialisierung der Wohnungen zu veranschaulichen.

Interessiert? Dann lohnt sich eine Besichtigung.
550 m
Öffentlicher Verkehr
500 m
Einkaufsmöglichkeit
500 m
Schule / Kindergarten
2 km
Stadtzentrum
aussicht Aussicht
haustiere Haustiere erlaubt
balkon Balkon / Sitzplatz
kinderfreundlich Kinder-freundlich

Weitere Objekte von Regimo Bern