© 2026 Regimo Bern

MIETEN OHNE KAUTION - Familienfreundliches Quartier im Grünen

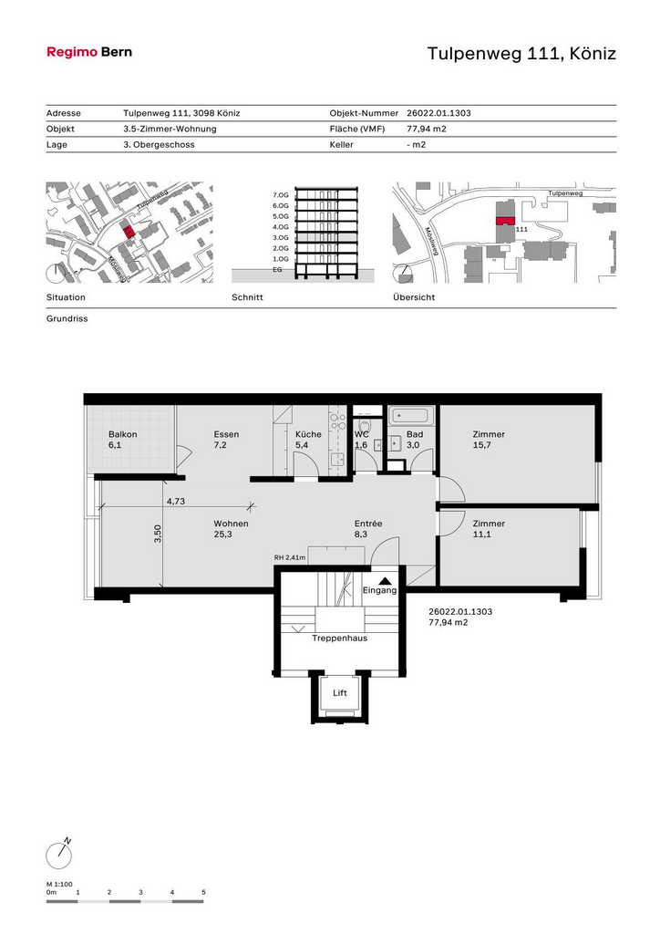
Sie werden es möglicherweise bereuen, wenn Sie zu spät kommen. Denn diese Wohnung befindet sich an zentraler Lage und dennoch im Grünen. Sie ist geräumig, modern ausgestattet und überzeugt durch ein faires Preis-Leistungsverhältnis.

Für Ihre Wohnqualität:
- Küche mit Glaskeramikherd und Geschirrspüler
- Parkett und Plattenböden
- Nasszelle mit Badewanne
- separates WC
- Reduit
- Balkon
- Kellerabteil
- Lift

Zusätzlich auf Wunsch: Einstellplatz Tiefgarage, ab CHF 105.00/Monat

Bei diesem Mietobjekt müssen Sie nicht wie üblich drei Monatsmieten als Kaution auf ein Sperrkonto einzahlen. So bleiben Sie liquid, da nicht eine grössere Geldsumme für die Dauer Ihres Mietverhältnisses blockiert ist. Und das Beste: Das Angebot "Mieten ohne Kaution" ist für Sie gratis. Erfahren Sie mehr auf https://regimo.ch/kaution oder auf dem Flyer in der Fotoserie des Inserates.

Interessiert? Dann lohnt sich eine Besichtigung.
450 m
Öffentlicher Verkehr
1 km
Einkaufsmöglichkeit
400 m
Schule / Kindergarten
3.5 km
Stadtzentrum
aussicht Aussicht
balkon Balkon / Sitzplatz
Garage Garage / Parkplatz

Weitere Objekte von Regimo Bern