© 2026 Regimo Bern

MIETEN OHNE KAUTION - Attikawohnung an sonniger Lage

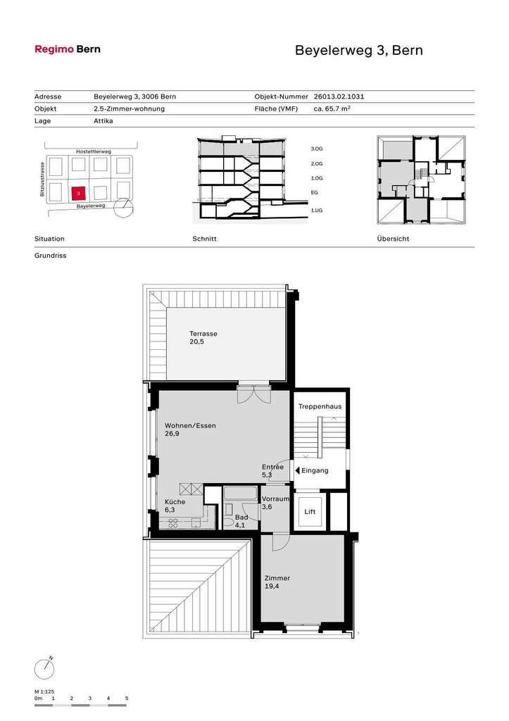
Lebensqualität in der Stadt Bern. Schönberg Ost, ein urbanes Wohnquartier im Herzen der beliebten und exklusiven Wohngegend Schosshalde. Ideale Verkehrslage und hoher Freizeitwert - hier finden Sie Luxus auf eine andere Art. Von Schönberg-Ost aus bietet sich ein herrlicher Blick bis weit in die Jurahöhen, über den Bantiger bis hin zum Gurten. Aus der Ferne grüssen die schneebedeckten Gipfel der Berner Alpen.

Für Ihre Wohnqualität
- Küche mit Geschirrspüler und Glaskeramikherd
- Parkett- und Plattenböden
- Nasszelle mit Bad/WC
- eigener Waschturm in der Waschküche
- Balkone
- Keller

Zusätzlich auf Wunsch: Einstellplatz Tiefgarage, ab CHF 150.00/Monat

Bei diesem Mietobjekt müssen Sie nicht wie üblich drei Monatsmieten als Kaution auf ein Sperrkonto einzahlen. So bleiben Sie liquid, da nicht eine grössere Geldsumme für die Dauer Ihres Mietverhältnisses blockiert ist. Und das Beste: Das Angebot "Mieten ohne Kaution" ist für Sie gratis. Erfahren Sie mehr auf https://regimo.ch/kaution oder auf dem Flyer in der Fotoserie des Inserates.

Weitere Informationen zu den verfügbaren Wohnungen, erhalten Sie unter www.schoenberg-ost-miete.ch 

Interessiert? Dann lohnt sich eine Besichtigung.
eckdaten Lift
haustiere Haustiere erlaubt
kinderfreundlich Kinder-freundlich
Garage Garage / Parkplatz

Weitere Objekte von Regimo Bern