© 2026 Regimo Bern

MIETEN OHNE KAUTION - Alles gut im Mühlegut

Die Geissfluhstrasse befindet sich an ruhiger Lage im nördlichsten Teil von Solothurn.
Das Ladendorf und auch der Bahnhof Langendorf sind zu Fuss in wenigen Minuten erreichbar. Die Altstadt Solothurn mit seinen zahlreichen Fachgeschäften, vielfältigen Restaurants, Kaffeehäusern und Bars und einem ansehnlichen Kulturangebot erreichen Sie ebenfalls zu Fuss, mit Bus oder Fahrrad.

Für Ihre Wohnqualität:
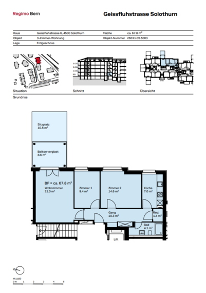
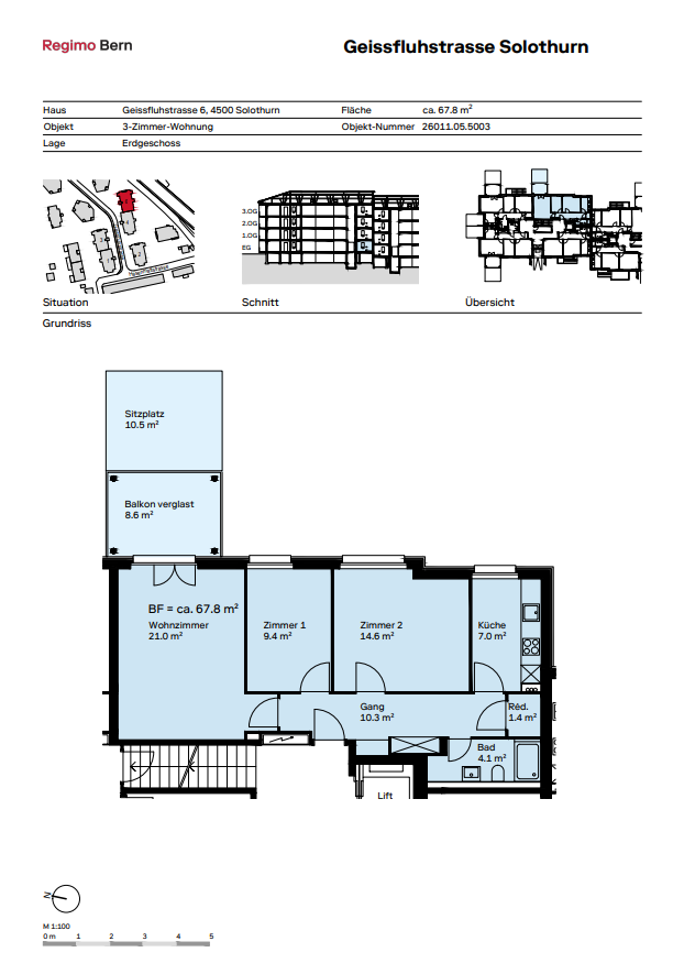
- Parkett- und Plattenböden
- abgeschlossene Küche mit Glaskeramikkochfeld und Geschirrspüler
- Nasszelle mit Dusche/WC
- Reduit
- Einbauschrank im Korridor
- verglaster Balkon
- zwei Sitzplätze
- Kellerabteil
- Lift

Bei diesem Mietobjekt müssen Sie nicht wie üblich drei Monatsmieten als Kaution auf ein Sperrkonto einzahlen. So bleiben Sie liquid, da nicht eine grössere Geldsumme für die Dauer Ihres Mietverhältnisses blockiert ist. Und das Beste: Das Angebot "Mieten ohne Kaution" ist für Sie gratis. Erfahren Sie mehr auf https://regimo.ch/kaution oder auf dem Flyer in der Fotoserie des Inserates.

Hinweis:
 Die abgebildeten Fotos stammen von einer typenähnlichen Wohnung und können in Ausstattung und Grundriss leicht variieren. Sie dienen lediglich dazu, die Materialisierung der Wohnungen zu veranschaulichen.

Interessiert? Dann lohnt sich eine Besichtigung.
350 m
Öffentlicher Verkehr
650 m
Einkaufsmöglichkeit
1 km
Schule / Kindergarten
4 km
Stadtzentrum
haustiere Haustiere erlaubt
balkon Balkon / Sitzplatz

Weitere Objekte von Regimo Bern