© 2026 Regimo Bern

MIETEN OHNE KAUTION - Wohnkomfort für Geniesser

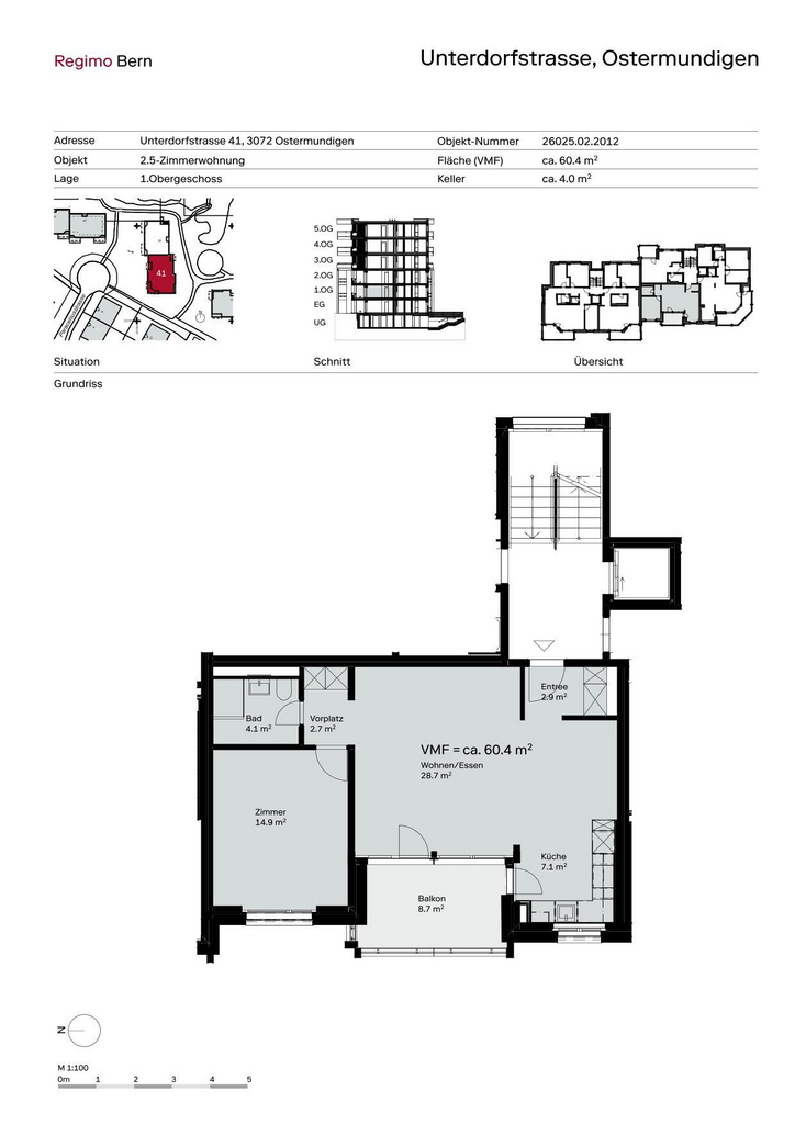
Sie werden es möglicherweise bereuen, wenn Sie zu spät kommen, denn diese Wohnung befindet sich an zentraler Lage und dennoch im Grünen. Sie ist geräumig und modern ausgestattet.

Für Ihre Wohnqualität:
- Offene Küche mit Glaskeramik und Geschirrspüler
- Nasszelle mit Dusche
- Parkettboden in Wohnzimmer
- Plattenboden in Küche und Nasszelle
- Wandschrank im Korridor
- Keller
- Balkon
- Lift

Zusätzlich auf Wunsch: Einstellplatz Tiefgarage, CHF 125.00/Monat

Weitere Informationen finden Sie unter: www.lindacasa.ch

Bei diesem Mietobjekt müssen Sie nicht wie üblich drei Monatsmieten als Kaution auf ein Sperrkonto einzahlen. So bleiben Sie liquid, da nicht eine grössere Geldsumme für die Dauer Ihres Mietverhältnisses blockiert ist. Und das Beste: Das Angebot "Mieten ohne Kaution" ist für Sie gratis. Erfahren Sie mehr auf https://regimo.ch/kaution oder auf dem Flyer in der Fotoserie des Inserates.

Hinweis: Die abgebildeten Fotos stammen von einer typenähnlichen Wohnung und können in Ausstattung und Grundriss leicht variieren. Sie dienen lediglich dazu, die Materialisierung der Wohnungen zu veranschaulichen.

Interessiert? Dann lohnt sich eine Besichtigung.
aussicht Aussicht
balkon Balkon / Sitzplatz

Weitere Objekte von Regimo Bern