© 2026 Regimo Bern

ERSTBEZUG - Wohnen mit Weitblick im Hochhuus Bern

Einzigartiges Wohnen hoch über Bern: An der Ostermundigenstrasse 93, 93a entstehen helle Wohnungen mit moderner Ausstattung, historischer Atmosphäre und beeindruckender Aussicht. Der Bahnhof Ostermundigen ist in wenigen Minuten erreichbar, die Autobahn schnell angebunden und Einkauf, Restaurants sowie Freizeitangebote befinden sich in unmittelbarer Nähe.

Ab Frühling 2026 vermieten wir moderne 2.5-Zimmer-Wohnungen mit folgendender Ausstattung:
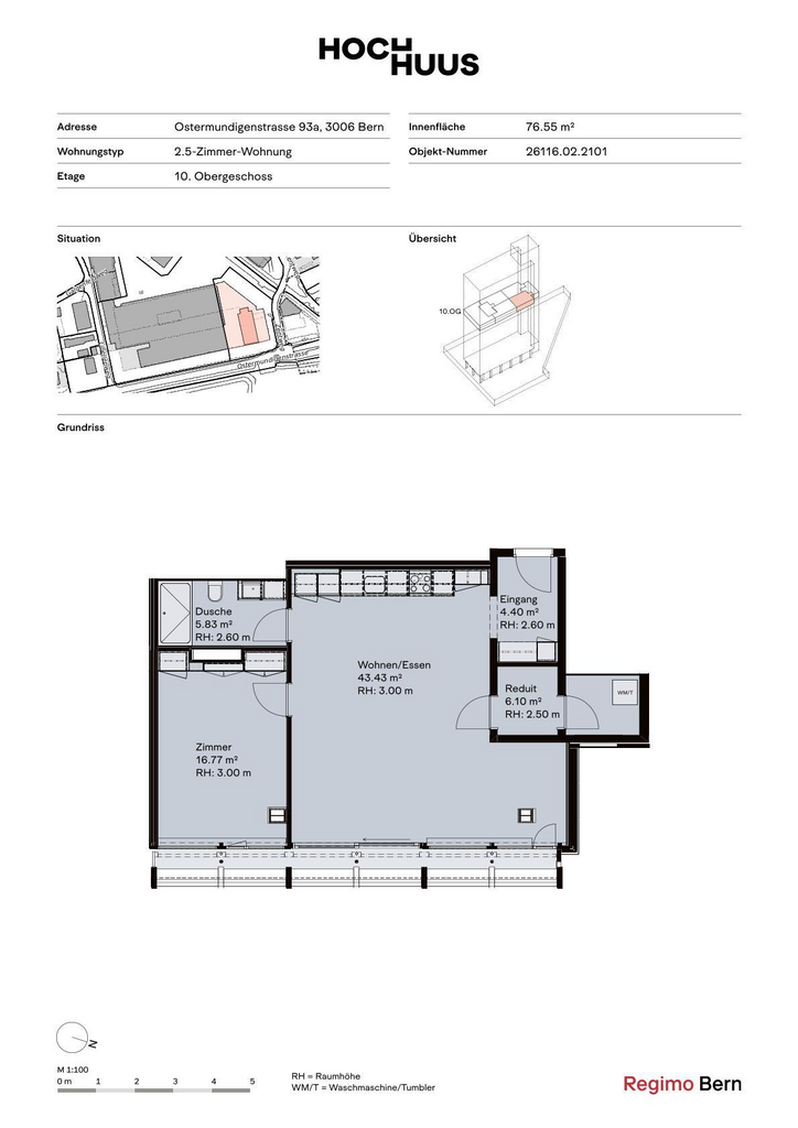
- Heller, offener Wohn- und Essbereich
- Moderne Küche mit Induktionskochfeld, Backofen und Geschirrspüler
- Nasszelle mit Dusche/WC
- Reduit mit eigenem Waschturm (Waschmaschine/Tumbler)
- Parkett/Plattenboden
- Garderobe im Eingangsbereich
- Einbauschränke im Schlafzimmer
- Kompaktbalkon
- Lift
- Kellerabteil

Hinweis: Die gezeigten Visualisierungen zeigen den Wohnungstyp und dienen zur Veranschaulichung der Materialisierung. Geringe Abweichungen in Ausstattung und Grundriss sind möglich.

Ein besonderes Merkmal sind die exklusiven Mieterbenefits, die das Hochhuus einzigartig machen. Die grosszügige Lobby dient als stilvoller Treffpunkt und Begegnungsort mit direktem Zugang zur Aussenfläche. Der multifunktionale Gemeinschaftsraum mit Küche und Nasszelle, buchbar via RegimoApp, bietet Raum für private Anlässe und Zusammenkünfte. Hoch über Bern geniessen die Bewohnerinnen und Bewohner zudem die möblierte Dachterrasse mit Grillstation, Sonnensegeln, Bepflanzung, Wasserbecken und eindrucksvoller Aussicht. Solche gemeinschaftlich nutzbaren Bereiche sind im Berner Wohnungsmarkt in dieser Art und Dimension einzigartig.

Ein weiteres Plus ist das Angebot "Mieten ohne Kaution". Bei diesen Mietobjekten müssen Sie nicht wie üblich drei Monatsmieten auf ein Sperrkonto einzahlen. Dadurch bleiben Sie finanziell flexibel, und das Angebot ist für Sie kostenlos. Mehr Informationen finden Sie unter https://regimo.ch/kaution oder im Flyer in der Fotoserie des Inserates.

Entdecken Sie mehr auf www.hochhuus.ch - Wir freuen uns auf Ihre Kontaktaufnahme.
50 m
Öffentlicher Verkehr
600 m
Einkaufsmöglichkeit
600 m
Schule / Kindergarten
1.3 km
Stadtzentrum
eckdaten Lift
aussicht Aussicht
haustiere Haustiere erlaubt
balkon Balkon / Sitzplatz

Weitere Objekte von Regimo Bern