© 2025 Regimo Bern

ERSTBEZUG - Moderne, renovierte Wohnungen für Paare und Einzelpersonen

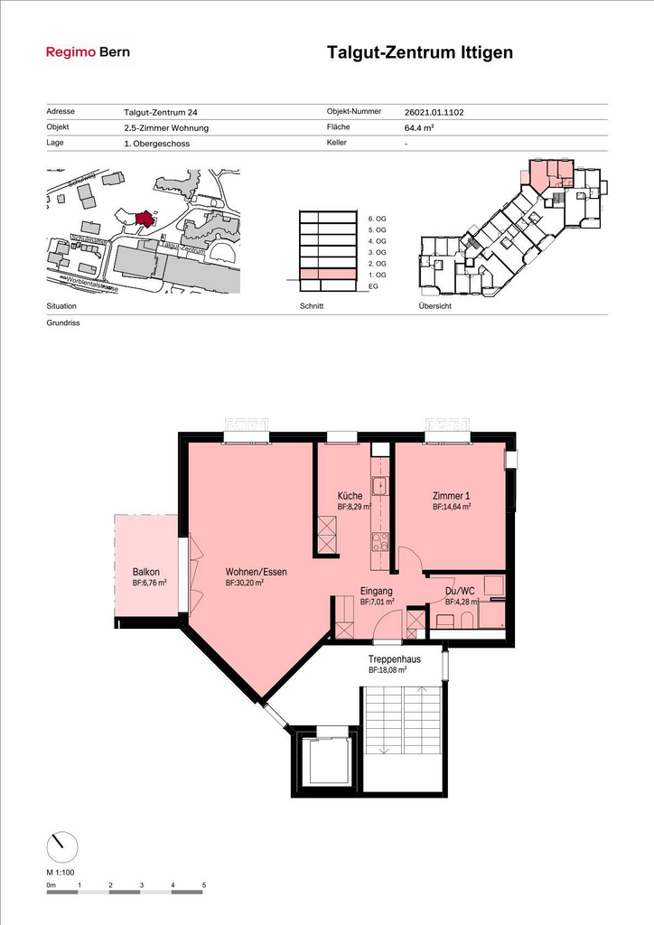
Ab Februar 2026 vermieten wir eine frisch sanierte 2.5-Zimmerwohnung im
Talgutzentrum 24/26 in Ittigen.

Diese zentral gelegene Wohnsiedlung bietet modernen Wohnkomfort in einem lebendigen Umfeld. Ob Single oder Paar, hier finden Sie ein zeitgemäss ausgestattetes Zuhause. Einkaufsmöglichkeiten und der öffentliche Verkehr sind direkt vor der Haustür, kurze Wege in die Stadt Bern inklusive.

Die hellen Wohnungen mit durchdachten Grundrissen und modernen Küchen bieten hohen Komfort und passen sich unterschiedlichen Lebenssituationen an.

Für Ihre Wohnqualität:

- Heller Wohn- und Schlafbereich 

- Renovierte, moderne Küche
- Nasszelle mit Dusche/WC und Waschturm
- Parkett in Wohn- und Schlafzimmer
- Grosszügige Terrasse
- Lift
- Kellerabteil

Zusätzlich auf Wunsch: Einstellplatz Tiefgarage, ab CHF 110.00/Monat.

Ein weiteres Plus ist das Angebot "Mieten ohne Kaution". Bei diesen Mietobjekten müssen Sie nicht wie üblich drei Monatsmieten auf ein Sperrkonto einzahlen. Dadurch bleiben Sie finanziell flexibel, und das Angebot ist für Sie kostenlos. Mehr Informationen finden Sie unter https://regimo.ch/kaution oder im Flyer in der Fotoserie des Inserates.

Interessiert? Dann lohnt sich eine Besichtigung.
350 m
Öffentlicher Verkehr
230 m
Einkaufsmöglichkeit
400 m
Schule / Kindergarten
1.3 km
Stadtzentrum
Garage Garage / Parkplatz

Weitere Objekte von Regimo Bern