© 2026 Regimo Bern

ERSTBEZUG - Modern wohnen im beliebten Breitenrain

Im beliebten Breitenrainquartier entstehen ab Frühling 2026 frisch sanierte, kompakte Wohnungen, die modernen Wohnkomfort mit urbanem Lebensgefühl verbinden. Die Parkstrasse 11a liegt nur wenige Gehminuten von Einkaufsmöglichkeiten, Cafés, Restaurants und dem öffentlichen Verkehr entfernt. Die Universität und das Stadtzentrum sind schnell erreichbar und machen die Wohnungen ideal für Studierende, Arbeitspendler und Pendler sowie Einzelpersonen.

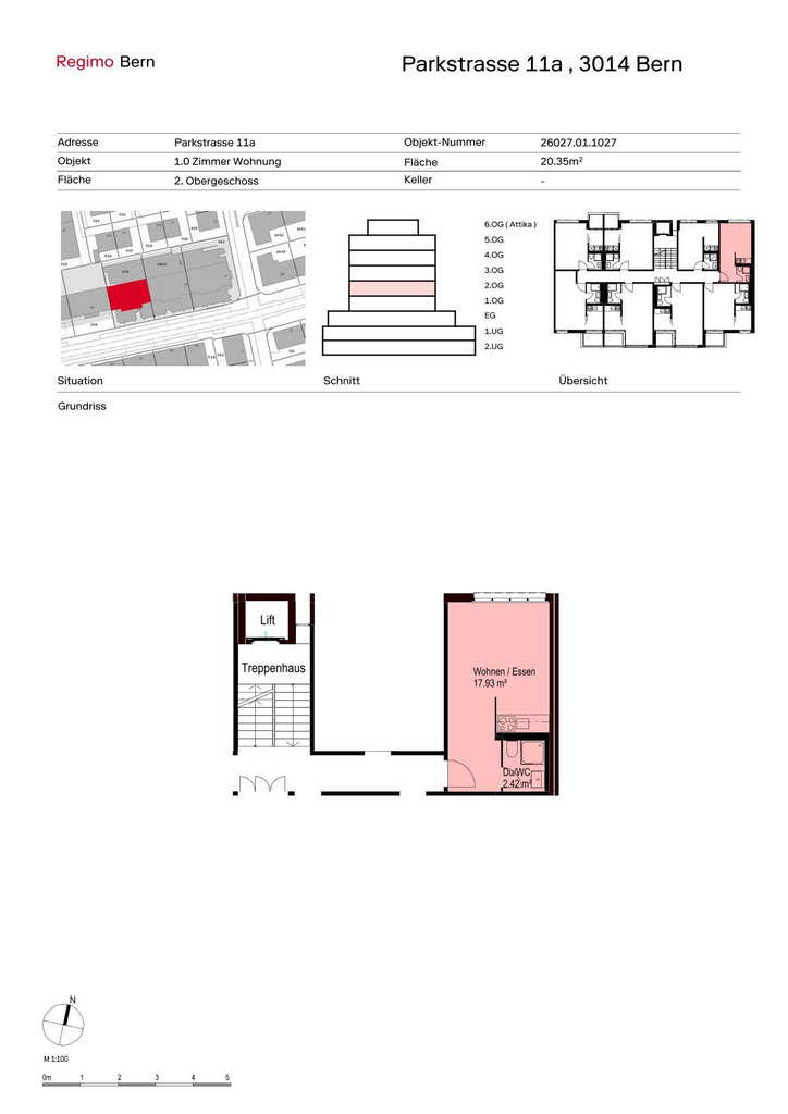
Wir vermieten modern ausgestattete 1.0- und 1.5-Zimmer-Wohnungen mit folgender Ausstattung:

- Heller Wohn- und Schlafbereich mit funktionaler Raumaufteilung
- Moderne Küche mit dunkelgrünen Fronten und Natursteinabdeckung
- Nasszelle mit Dusche/WC
- Eichenparkett in den Wohnbereichen
- Balkon
- Lift
- Kellerabteil

Zusätzlich auf Wunsch: Einstellplatz Tiefgarage, ab CHF 150.00/Monat.

Hinweis: Da sich die Liegenschaft noch im Umbau befindet, stehen derzeit keine Fotos der fertigen Wohnungen zur Verfügung. Zur besseren Vorstellung zeigen wir Küchenvisualisierungen sowie Planunterlagen der Nasszellen. Diese dienen als Orientierung für die Gestaltung und Materialisierung. Je nach Wohnungsgrösse und Grundriss sind Abweichungen in Ausstattung und Ausführung möglich.

Ein weiteres Plus ist das Angebot "Mieten ohne Kaution". Bei diesen Mietobjekten müssen Sie nicht wie üblich drei Monatsmieten auf ein Sperrkonto einzahlen. Dadurch bleiben Sie finanziell flexibel, und das Angebot ist für Sie kostenlos. Mehr Informationen finden Sie unter https://regimo.ch/kaution oder im Flyer in der Fotoserie des Inserates.

Interessiert? Dann lohnt sich eine Besichtigung.
350 m
Öffentlicher Verkehr
600 m
Einkaufsmöglichkeit
1 km
Schule / Kindergarten
1.5 km
Stadtzentrum
eckdaten Lift
balkon Balkon / Sitzplatz

Weitere Objekte von Regimo Bern