© 2026 Regimo Bern

Ein Zuhause an ruhiger, grüner Lage - mitten in Bern

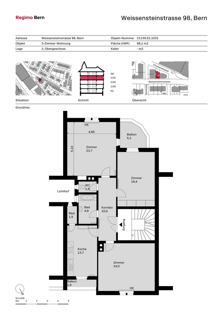
An der Weissensteinstrasse 98 in Bern wartet eine gepflegte 3-Zimmerwohnung auf Sie - ideal für Singles, Paare oder kleine Familien, die die Nähe zur Stadt und gleichzeitig ruhiges Wohnen im Grünen schätzen.

In einem charmanten, ruhigen Quartier gelegen, erreichen Sie dennoch alles in wenigen Minuten: Tramhaltestellen, Einkaufsmöglichkeiten, Cafés und Restaurants befinden sich praktisch vor der Haustür. Die Berner Innenstadt ist nur einen Katzensprung entfernt, und für erholsame Auszeiten im Grünen laden der nahegelegene Könizerbergwald sowie die Aare zu Spaziergängen und Freizeitaktivitäten ein.

Für Ihre Wohnqualität:
- grosszügige abgeschlossene Wohnküche mit Glaskeramikherd
- Parkettboden in Wohnzimmer und Korridor
- Pflegeleichter Linoleumboden in Küche und Reduit
- Hochwertige Laminatböden in beiden Schlafzimmer
- Nasszelle mit Bad
- Nasszelle mit sep. WC
- Praktische Einbauschränke in den Zimmern
- Reduit für Ihre Vorräte oder als Abstellraum
- Balkon
- Keller

Die Liegenschaft hat keinen Lift.

Interessiert? Dann lohnt sich eine Besichtigung.
aussicht Aussicht
balkon Balkon / Sitzplatz

Weitere Objekte von Regimo Bern