© 2026 Regimo Bern

Allein oder zu zweit: Hier könnte es Ihnen gefallen

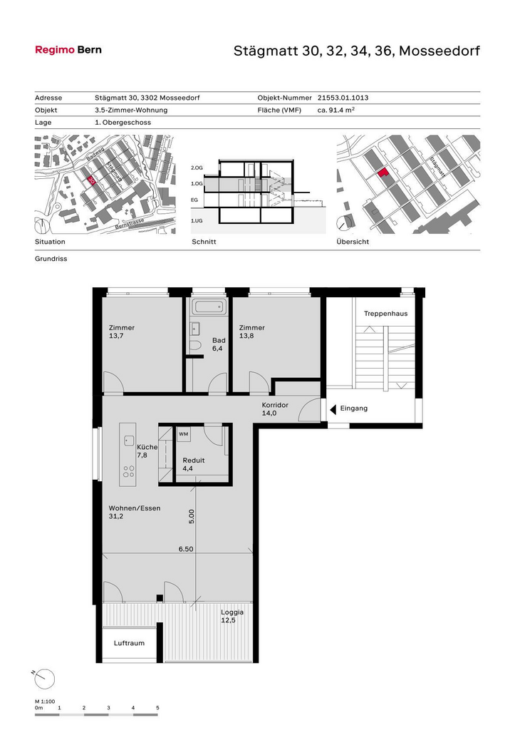
Sie werden es möglicherweise bereuen, wenn Sie zu spät kommen. Denn diese Wohnung befindet sich an zentraler Lage und dennoch im Grünen. Sie ist geräumig, modern ausgestattet und überzeugt durch ein faires Preis-Leistungsverhältnis.

Für Ihre Wohnqualität:
- offene Küche mit Glaskeramik und Geschirrspüler
- Nasszelle mit Bad/WC
- Parkettboden in Wohn- Küche und Schlafzimmer
- Plattenboden in Nasszelle
- Reduit mit eigenem Waschturm
- Balkon
- Kellerabteil

Zusätzlich auf Wunsch: Einstellplatz Tiefgarage, ab CHF 140.00/Monat

Hinweis: Die abgebildeten Fotos stammen von einer typenähnlichen Wohnung und können in Ausstattung und Grundriss leicht variieren. Sie dienen lediglich dazu, die Materialisierung der Wohnungen zu veranschaulichen

Interessiert? Dann lohnt sich eine Besichtigung.
350 m
Öffentlicher Verkehr
550 m
Einkaufsmöglichkeit
1.7 km
Schule / Kindergarten
650 m
Stadtzentrum
aussicht Aussicht
haustiere Haustiere erlaubt
balkon Balkon / Sitzplatz
kinderfreundlich Kinder-freundlich
Garage Garage / Parkplatz

Weitere Objekte von Regimo Bern